takeofficeなら掲載物件の仲介手数料は無料です

USビル

住所 東京都千代田区平河町1-6-15
交通 東京メトロ有楽町線麹町」 徒歩3分
東京メトロ半蔵門線半蔵門」 徒歩3分
竣工 1982年01月 構造 SRC
規模 地上9階 耐震基準 新耐震基準
床構造 フリーアクセス 空調設備 個別空調
天井高 - 基準階面積 --
コンセント容量 - 施工会社

最新の募集状況や類似物件については、
こちらにお問い合わせください。

USビル 外観

外観

  • NOW PRINTING

    エントランス

  • 基準階

    基準階

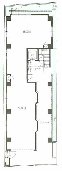
  • 1F

    1F

  • 7F

    7F

内見やお見積りなどの各種お問い合わせ

全物件
仲介手数料無料
仲介から
入居工事まで
ワンストップで対応
経験豊富なスタッフが
スピード感をもって
対応

周辺での似た条件の物件

非公開物件 多数あり!

お問い合わせフォーム