takeofficeなら掲載物件の仲介手数料は無料です

ミカミビル

住所 東京都千代田区麹町1-10-1
交通 東京メトロ半蔵門線半蔵門」 徒歩3分
東京メトロ有楽町線麹町」 徒歩7分
東京メトロ半蔵門線永田町」 徒歩12分
竣工 2004年03月 構造 RC
規模 地上8階, 地下0階 耐震基準 -
床構造 フリーアクセス 40mm 空調設備 個別空調
天井高 - 基準階面積 --
コンセント容量 - 施工会社

最新の募集状況や類似物件については、
こちらにお問い合わせください。

ミカミビル 外観

外観

  • ミカミビル エントランス写真

    エントランス

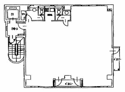
  • 基準階(4~6F)

    基準階(4~6F)

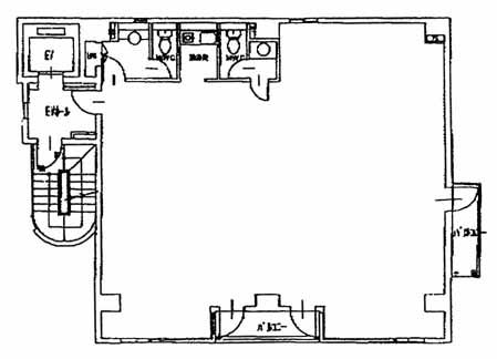
  • 2~3F

    2~3F

内見やお見積りなどの各種お問い合わせ

全物件
仲介手数料無料
仲介から
入居工事まで
ワンストップで対応
経験豊富なスタッフが
スピード感をもって
対応

周辺での似た条件の物件

非公開物件 多数あり!

お問い合わせフォーム