takeofficeなら掲載物件の仲介手数料は無料です

平河ハイツ

住所 東京都千代田区平河町2-12-13
交通 東京メトロ半蔵門線半蔵門」 徒歩4分
東京メトロ有楽町線永田町」 徒歩7分
東京メトロ有楽町線麹町」 徒歩7分
竣工 1973年11月 構造 SRC
規模 地上5階, 地下1階 耐震基準 旧耐震基準
床構造 フリーアクセス 空調設備 -
天井高 - 基準階面積 --
コンセント容量 - 施工会社

最新の募集状況や類似物件については、
こちらにお問い合わせください。

平河ハイツ 外観

外観

  • NOW PRINTING

    エントランス

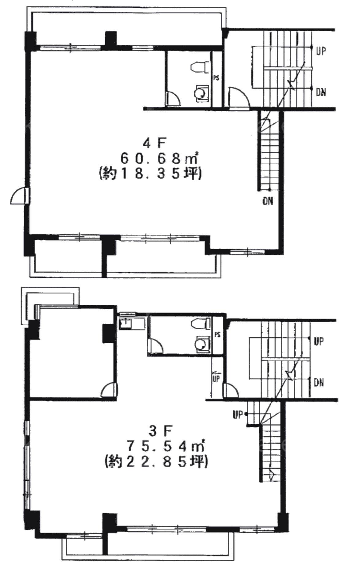
  • 3F~4F

    3F~4F

内見やお見積りなどの各種お問い合わせ

全物件
仲介手数料無料
仲介から
入居工事まで
ワンストップで対応
経験豊富なスタッフが
スピード感をもって
対応

周辺での似た条件の物件

非公開物件 多数あり!

お問い合わせフォーム