takeofficeなら掲載物件の仲介手数料は無料です

幸ビルディング

住所 東京都千代田区内幸町1-3-1
交通 都営三田線内幸町」 徒歩1分
東京メトロ丸ノ内線霞ヶ関」 徒歩5分
JR東海道線新橋」 徒歩5分
竣工 1980年12月 構造 SRC
規模 地上16階, 地下2階 耐震基準 新耐震基準
床構造 フリーアクセス 空調設備 セントラル+個別
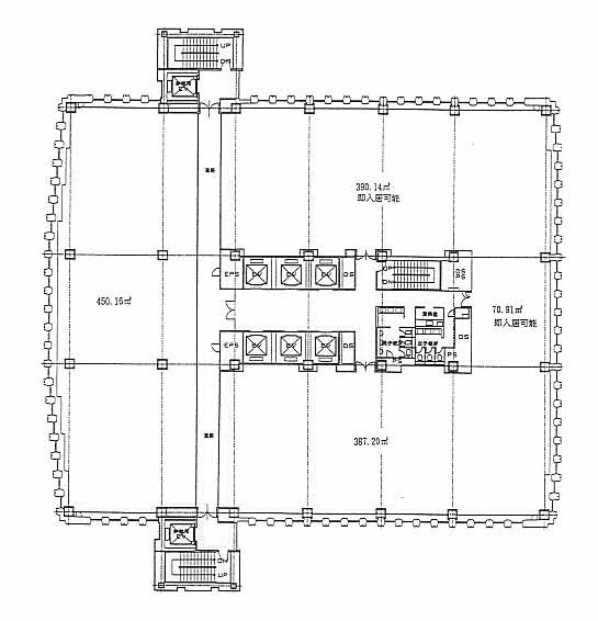
天井高 2600mm 基準階面積 408.16坪(1349.29m2)
コンセント容量 - 施工会社

最新の募集状況や類似物件については、
こちらにお問い合わせください。

幸ビルディング 外観

外観

  • 幸ビルディング エントランス写真

    エントランス

  • 基準階(4~16F)

    基準階(4~16F)

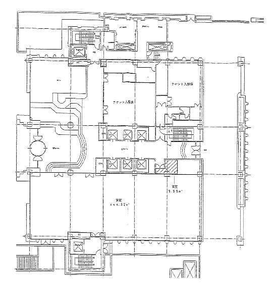
  • 1F

    1F

  • 2F

    2F

  • 3F

    3F

内見やお見積りなどの各種お問い合わせ

全物件
仲介手数料無料
仲介から
入居工事まで
ワンストップで対応
経験豊富なスタッフが
スピード感をもって
対応

周辺での似た条件の物件

非公開物件 多数あり!

お問い合わせフォーム