takeofficeなら掲載物件の仲介手数料は無料です

小谷ビル

住所 東京都千代田区有楽町1-6-6
交通 東京メトロ日比谷線日比谷」 徒歩1分
JR山手線有楽町」 徒歩1分
東京メトロ有楽町線有楽町」 徒歩1分
竣工 1960年 月 構造 SRC
規模 地上9階, 地下2階 耐震基準 旧耐震基準
床構造 - 空調設備 個別空調
天井高 2700mm 基準階面積 48.5坪(160.33m2)
コンセント容量 - 施工会社

最新の募集状況や類似物件については、
こちらにお問い合わせください。

小谷ビル 外観

外観

  • 小谷ビル エントランス写真

    エントランス

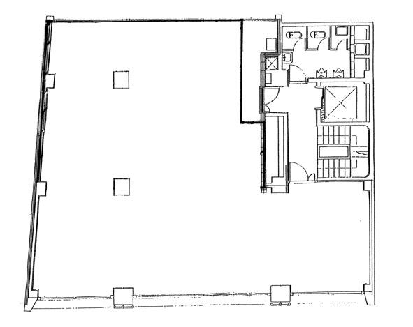
  • 基準階(2~9F)

    基準階(2~9F)

内見やお見積りなどの各種お問い合わせ

全物件
仲介手数料無料
仲介から
入居工事まで
ワンストップで対応
経験豊富なスタッフが
スピード感をもって
対応

周辺での似た条件の物件

非公開物件 多数あり!

お問い合わせフォーム