takeofficeなら掲載物件の仲介手数料は無料です

飯野ビルディング

住所 東京都千代田区内幸町2-1-1
交通 東京メトロ千代田線霞ヶ関」 徒歩1分
都営三田線内幸町」 徒歩4分
東京メトロ銀座線虎ノ門」 徒歩5分
竣工 2011年06月 構造 鉄骨造+SRC
規模 地上27階, 地下5階 耐震基準 新耐震基準
床構造 フリーアクセス 200mm 空調設備 個別空調
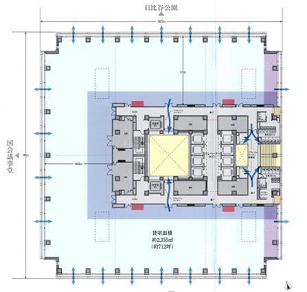
天井高 3000mm 基準階面積 712.39坪(2355m2)
コンセント容量 60VA/m2 施工会社

最新の募集状況や類似物件については、
こちらにお問い合わせください。

飯野ビルディング 外観

外観

建物パンフレット

建物パンフレットは作成時点のものであり、また計画段階のものも含まれる為、実際とは異なる場合がございます。

内見やお見積りなどの各種お問い合わせ

全物件
仲介手数料無料
仲介から
入居工事まで
ワンストップで対応
経験豊富なスタッフが
スピード感をもって
対応

※「ご相談」と記載されている項目について
賃貸人が募集賃料条件を守秘義務の関係から明示していない場合に、【ご相談】と記載しております。
フリーレント(賃料免除)期間、使用面積、入居時期、テナント様の与信などによりご提示できる条件が若干変化いたします。
お手数ですが、詳細につきましては、上記よりお問い合わせください。

周辺での似た条件の物件

非公開物件 多数あり!

お問い合わせフォーム