takeofficeなら掲載物件の仲介手数料は無料です

郵船ビルディング(丸の内郵船ビル)

住所 東京都千代田区丸の内2-3-2
交通 JR山手線東京」 徒歩3分
東京メトロ丸ノ内線東京」 徒歩2分
東京メトロ千代田線二重橋前」 徒歩1分
竣工 1978年02月 構造 鉄骨造+SRC
規模 地上15階, 地下3階 耐震基準 新耐震基準
床構造 フリーアクセス 空調設備 フロア別空調
天井高 2700mm 基準階面積 781坪(2584m2)
コンセント容量 45VA/m2 施工会社 郵船ビル新築工事共同企業体(大成建設・竹中工務店・大林組)
坪面積 用途 賃料 坪単価 共益費 入居可能日
7 103.33坪 事務所 募集終了登録日: 2025年10月16日
郵船ビルディング(丸の内郵船ビル) 外観

外観

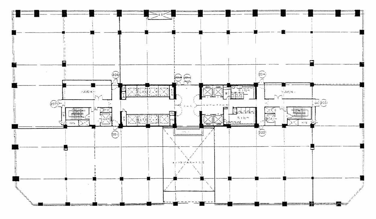
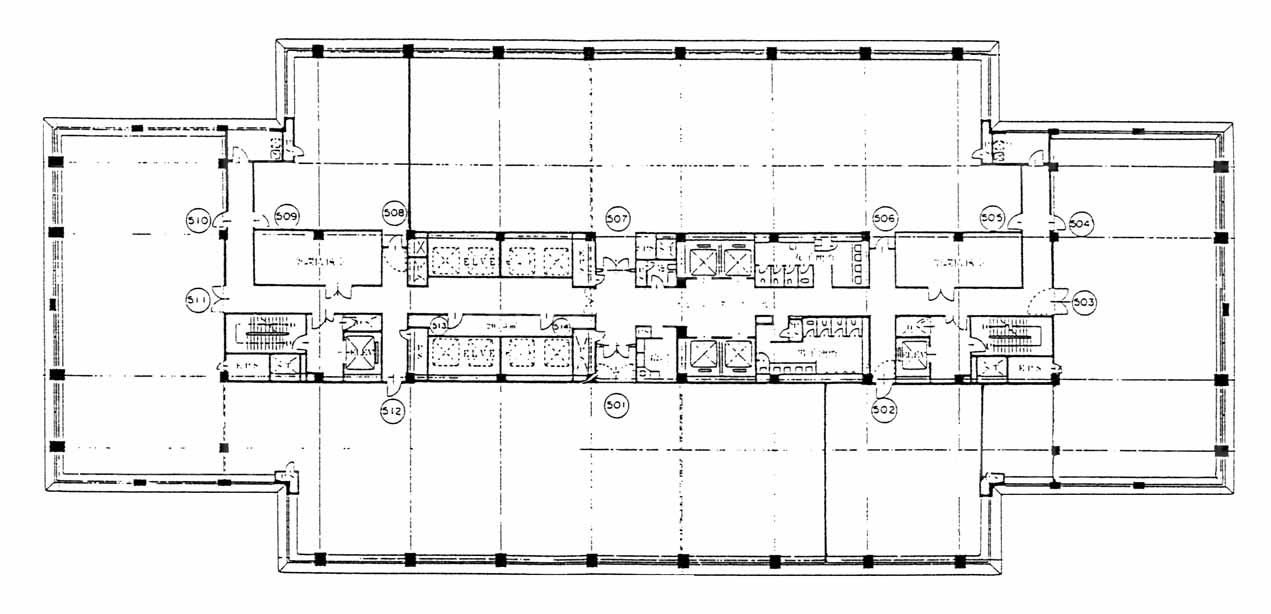
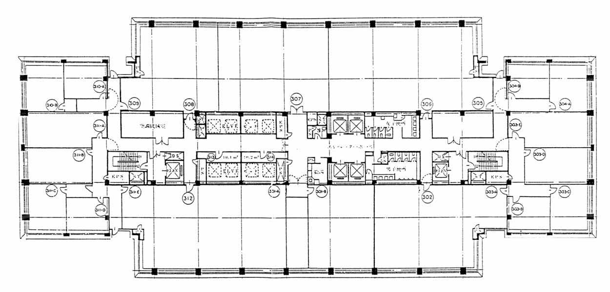
建物パンフレット

建物パンフレットは作成時点のものであり、また計画段階のものも含まれる為、実際とは異なる場合がございます。

内見やお見積りなどの各種お問い合わせ

全物件
仲介手数料無料
仲介から
入居工事まで
ワンストップで対応
経験豊富なスタッフが
スピード感をもって
対応

※「ご相談」と記載されている項目について
賃貸人が募集賃料条件を守秘義務の関係から明示していない場合に、【ご相談】と記載しております。
フリーレント(賃料免除)期間、使用面積、入居時期、テナント様の与信などによりご提示できる条件が若干変化いたします。
お手数ですが、詳細につきましては、上記よりお問い合わせください。

周辺での似た条件の物件

非公開物件 多数あり!

お問い合わせフォーム