takeofficeなら掲載物件の仲介手数料は無料です

京王東日本橋第2ビル

住所 東京都中央区東日本橋1-1-5
交通 都営浅草線東日本橋」 徒歩2分
都営新宿線馬喰横山」 徒歩2分
JR総武線(快速)馬喰町」 徒歩5分
竣工 1996年11月 構造 鉄骨造
規模 地上9階, 地下1階 耐震基準 新耐震基準
床構造 フリーアクセス 100mm 空調設備 個別空調
天井高 2500mm 基準階面積 129.59坪(428.4m2)
コンセント容量 - 施工会社
坪面積 用途 賃料 坪単価 共益費 入居可能日
5 129.14坪 事務所 募集終了登録日: 2025年12月01日
京王東日本橋第2ビル 外観

外観

  • 京王東日本橋第2ビル エントランス写真

    エントランス

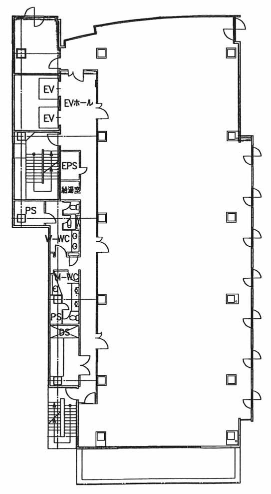
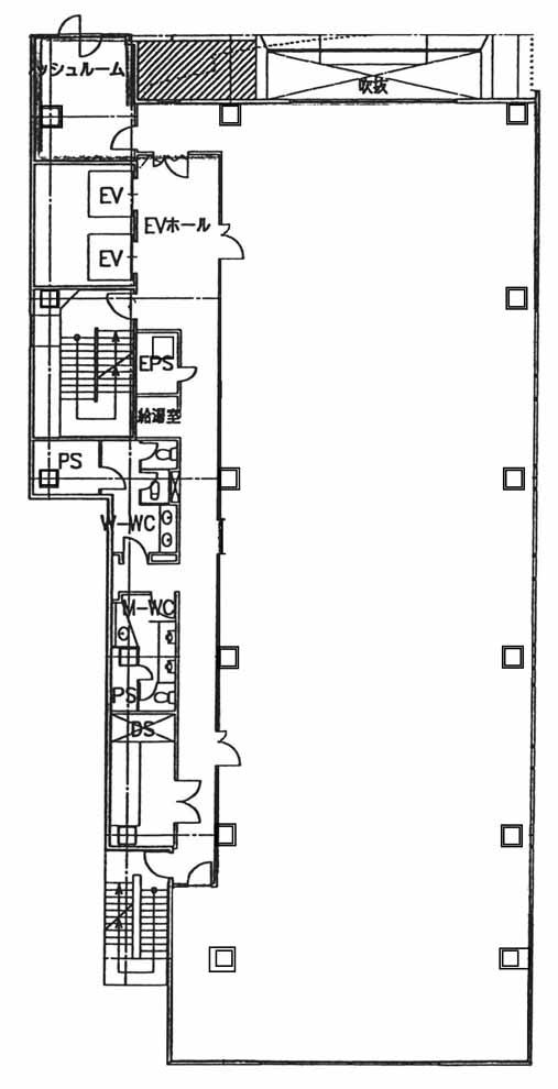
  • 基準階(3~4F)

    基準階(3~4F)

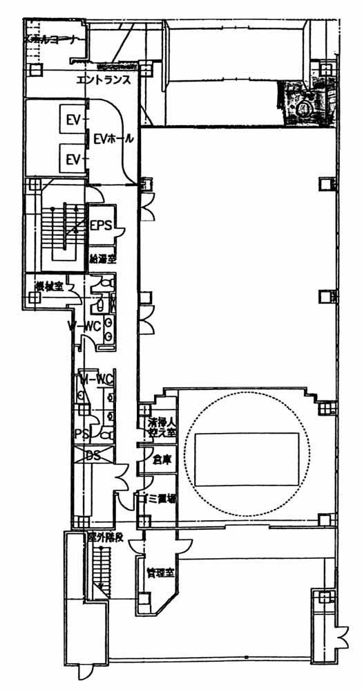
  • 1F

    1F

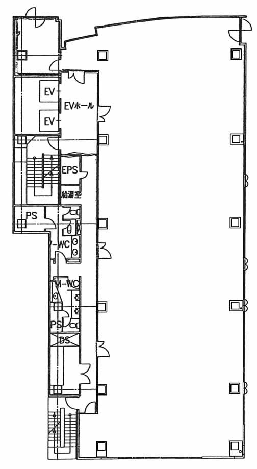
  • 2F

    2F

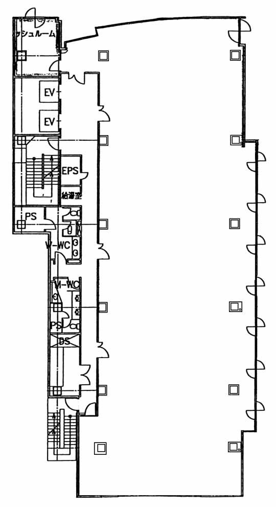
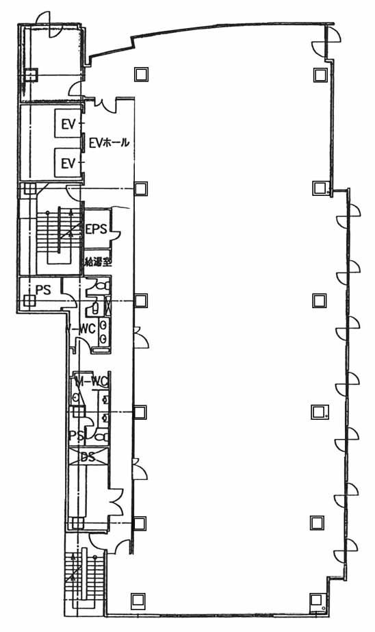
  • 5~7F

    5~7F

  • 8F

    8F

  • 9F

    9F

建物パンフレット

建物パンフレットは作成時点のものであり、また計画段階のものも含まれる為、実際とは異なる場合がございます。

内見やお見積りなどの各種お問い合わせ

全物件
仲介手数料無料
仲介から
入居工事まで
ワンストップで対応
経験豊富なスタッフが
スピード感をもって
対応

※「ご相談」と記載されている項目について
賃貸人が募集賃料条件を守秘義務の関係から明示していない場合に、【ご相談】と記載しております。
フリーレント(賃料免除)期間、使用面積、入居時期、テナント様の与信などによりご提示できる条件が若干変化いたします。
お手数ですが、詳細につきましては、上記よりお問い合わせください。

周辺での似た条件の物件

非公開物件 多数あり!

お問い合わせフォーム