takeofficeなら掲載物件の仲介手数料は無料です

リバーサイド和興ビル

住所 東京都中央区東日本橋1-11-15
交通 都営新宿線浜町」 徒歩5分
都営浅草線東日本橋」 徒歩6分
都営新宿線馬喰横山」 徒歩7分
竣工 1974年10月 構造 SRC
規模 地上9階 耐震基準 旧耐震基準
床構造 フリーアクセス 空調設備 個別空調
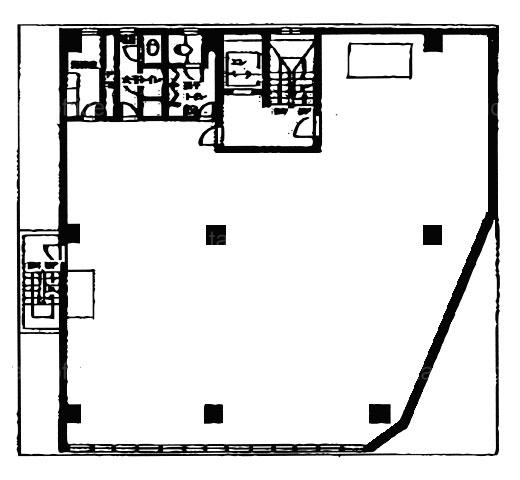
天井高 - 基準階面積 75.4坪(249.26m2)
コンセント容量 - 施工会社

最新の募集状況や類似物件については、
こちらにお問い合わせください。

リバーサイド和興ビル 外観

外観

  • リバーサイド和興ビル エントランス写真

    エントランス

  • 基準階(2~9F)

    基準階(2~9F)

  • 1

    1

内見やお見積りなどの各種お問い合わせ

全物件
仲介手数料無料
仲介から
入居工事まで
ワンストップで対応
経験豊富なスタッフが
スピード感をもって
対応

周辺での似た条件の物件

非公開物件 多数あり!

お問い合わせフォーム