takeofficeなら掲載物件の仲介手数料は無料です

コセイビル

住所 東京都中央区東日本橋2-9-2
交通 都営浅草線東日本橋」 徒歩2分
都営新宿線馬喰横山」 徒歩4分
JR総武線(快速)馬喰町」 徒歩4分
竣工 1973年09月 構造 SRC+RC
規模 地上7階, 地下1階 耐震基準 旧耐震基準
床構造 - 空調設備 個別空調
天井高 2350mm 基準階面積 31坪(102.48m2)
コンセント容量 - 施工会社

最新の募集状況や類似物件については、
こちらにお問い合わせください。

コセイビル 外観

外観

  • コセイビル エントランス写真

    エントランス

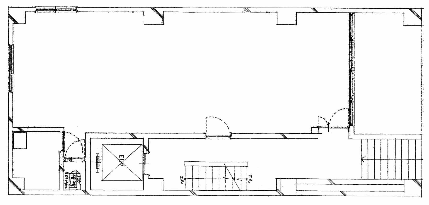
  • 基準階(2~5F)

    基準階(2~5F)

  • 1F

    1F

  • 6F

    6F

内見やお見積りなどの各種お問い合わせ

全物件
仲介手数料無料
仲介から
入居工事まで
ワンストップで対応
経験豊富なスタッフが
スピード感をもって
対応

周辺での似た条件の物件

非公開物件 多数あり!

お問い合わせフォーム