takeofficeなら掲載物件の仲介手数料は無料です

第3シラカワビル

住所 東京都中央区東日本橋2-25-4
交通 JR総武本線浅草橋」 徒歩6分
都営浅草線東日本橋」 徒歩3分
JR総武線(快速)馬喰町」 徒歩4分
竣工 1990年06月 構造 SRC
規模 地上9階, 地下1階 耐震基準 新耐震基準
床構造 3WAY 空調設備 個別空調
天井高 - 基準階面積 29.19坪(96.5m2)
コンセント容量 - 施工会社

最新の募集状況や類似物件については、
こちらにお問い合わせください。

第3シラカワビル 外観

外観

  • 第3シラカワビル エントランス写真

    エントランス

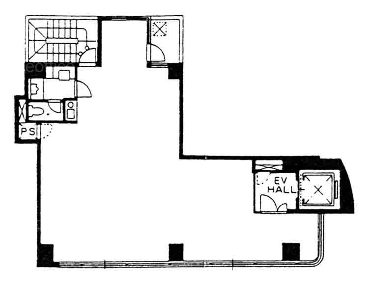
  • 基準階

    基準階

  • 2F

    2F

内見やお見積りなどの各種お問い合わせ

全物件
仲介手数料無料
仲介から
入居工事まで
ワンストップで対応
経験豊富なスタッフが
スピード感をもって
対応

周辺での似た条件の物件

非公開物件 多数あり!

お問い合わせフォーム