takeofficeなら掲載物件の仲介手数料は無料です

SHO-BI東京ビル

住所 東京都中央区東日本橋3-9-7
交通 都営浅草線東日本橋」 徒歩1分
都営新宿線馬喰横山」 徒歩1分
JR総武線(快速)馬喰町」 徒歩3分
竣工 1989年11月 構造 -
規模 地上9階 耐震基準 新耐震基準
床構造 - 空調設備 個別空調
天井高 - 基準階面積 38.03坪(125.72m2)
コンセント容量 - 施工会社

最新の募集状況や類似物件については、
こちらにお問い合わせください。

NOW PRINTING

外観

  • NOW PRINTING

    エントランス

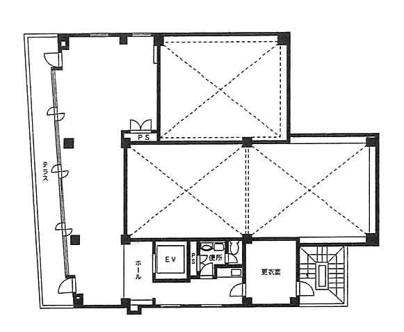
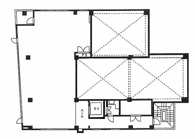
  • 2F

    2F

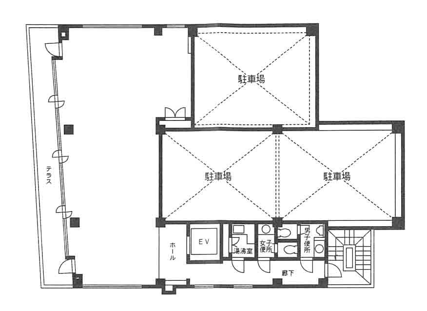
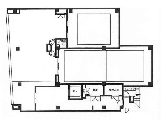
  • 1F

    1F

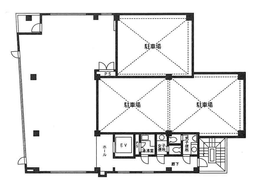
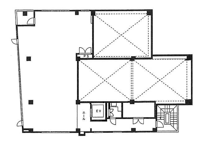
  • 3F

    3F

  • 4F

    4F

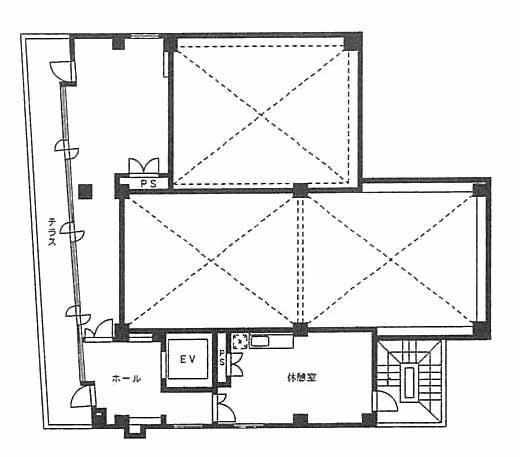
  • 5F

    5F

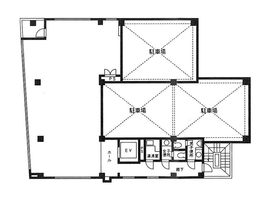
  • 6F

    6F

  • 7F

    7F

  • 8F

    8F

  • 9F

    9F

内見やお見積りなどの各種お問い合わせ

全物件
仲介手数料無料
仲介から
入居工事まで
ワンストップで対応
経験豊富なスタッフが
スピード感をもって
対応

周辺での似た条件の物件

非公開物件 多数あり!

お問い合わせフォーム