takeofficeなら掲載物件の仲介手数料は無料です

第23イチオクビル

住所 東京都中央区日本橋馬喰町2-7-11
交通 JR総武線(快速)馬喰町」 徒歩4分
JR総武本線浅草橋」 徒歩4分
都営浅草線東日本橋」 徒歩7分
竣工 1970年03月 構造 RC
規模 地上6階 耐震基準 旧耐震基準
床構造 - 空調設備 個別空調
天井高 - 基準階面積 --
コンセント容量 - 施工会社

最新の募集状況や類似物件については、
こちらにお問い合わせください。

NOW PRINTING

外観

  • NOW PRINTING

    エントランス

  • 4F

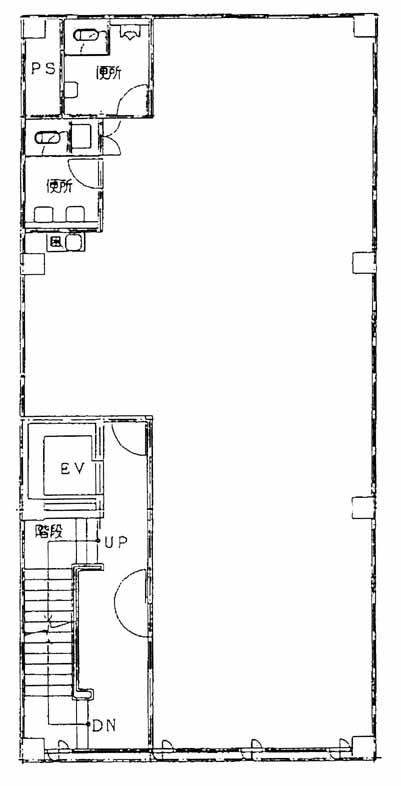
    4F

  • 5F

    5F

内見やお見積りなどの各種お問い合わせ

全物件
仲介手数料無料
仲介から
入居工事まで
ワンストップで対応
経験豊富なスタッフが
スピード感をもって
対応

周辺での似た条件の物件

非公開物件 多数あり!

お問い合わせフォーム