takeofficeなら掲載物件の仲介手数料は無料です

ALBION東日本橋ビル(旧:浅草橋フィナンシャルビル)

住所 東京都中央区東日本橋2-24-11
交通 JR総武線(快速)馬喰町」 徒歩2分
都営浅草線東日本橋」 徒歩5分
JR総武本線浅草橋」 徒歩7分
竣工 2009年03月 構造 鉄骨造
規模 地上10階 耐震基準 新耐震基準
床構造 フリーアクセス 75mm 空調設備 個別空調
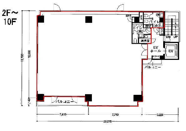
天井高 2600mm 基準階面積 63.12坪(208.66m2)
コンセント容量 100VA/m2 施工会社 イチケン

最新の募集状況や類似物件については、
こちらにお問い合わせください。

ALBION東日本橋ビル(旧:浅草橋フィナンシャルビル) 外観

外観

建物パンフレット

建物パンフレットは作成時点のものであり、また計画段階のものも含まれる為、実際とは異なる場合がございます。

内見やお見積りなどの各種お問い合わせ

全物件
仲介手数料無料
仲介から
入居工事まで
ワンストップで対応
経験豊富なスタッフが
スピード感をもって
対応

周辺での似た条件の物件

非公開物件 多数あり!

お問い合わせフォーム