takeofficeなら掲載物件の仲介手数料は無料です

イマスオフィス馬喰町

住所 東京都中央区日本橋馬喰町1-5-6
交通 JR総武線(快速)馬喰町」 徒歩1分
都営新宿線馬喰横山」 徒歩2分
東京メトロ日比谷線小伝馬町」 徒歩4分
竣工 1984年05月 構造 SRC
規模 地上9階 耐震基準 新耐震基準
床構造 - 空調設備 個別空調
天井高 2400mm 基準階面積 74.28坪(245.55m2)
コンセント容量 - 施工会社

最新の募集状況や類似物件については、
こちらにお問い合わせください。

イマスオフィス馬喰町 外観

外観

  • イマスオフィス馬喰町 エントランス写真

    エントランス

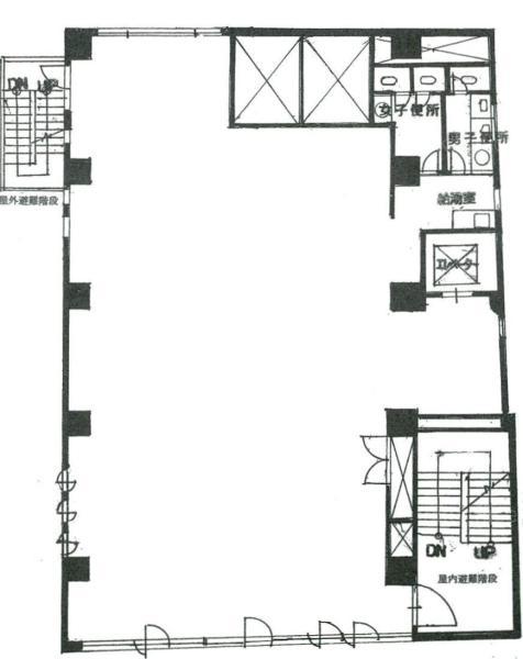
  • 基準階

    基準階

内見やお見積りなどの各種お問い合わせ

全物件
仲介手数料無料
仲介から
入居工事まで
ワンストップで対応
経験豊富なスタッフが
スピード感をもって
対応

周辺での似た条件の物件

非公開物件 多数あり!

お問い合わせフォーム