takeofficeなら掲載物件の仲介手数料は無料です

日本橋村松ビル

住所 東京都中央区日本橋浜町1-1-1
交通 都営新宿線浜町」 徒歩2分
都営浅草線東日本橋」 徒歩4分
東京メトロ日比谷線人形町」 徒歩6分
竣工 1994年03月 構造 鉄骨造
規模 地上10階 耐震基準 新耐震基準
床構造 - 空調設備 -
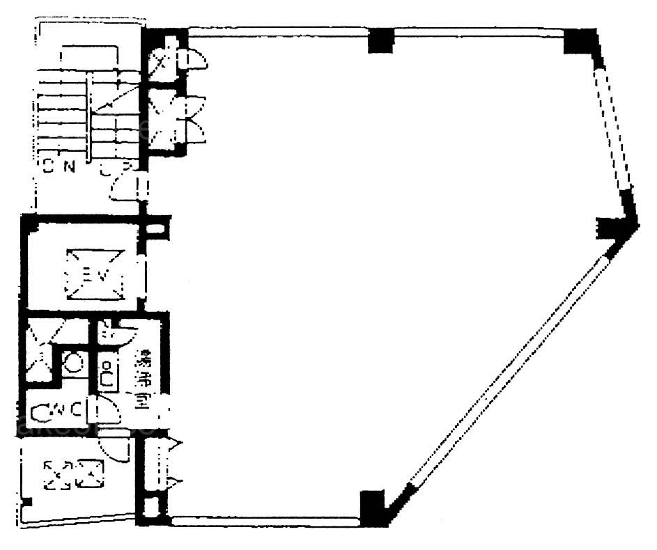
天井高 - 基準階面積 27坪(90m2)
コンセント容量 - 施工会社

最新の募集状況や類似物件については、
こちらにお問い合わせください。

日本橋村松ビル 外観

外観

  • NOW PRINTING

    エントランス

  • 1F

    1F

  • 2F

    2F

  • 8F

    8F

内見やお見積りなどの各種お問い合わせ

全物件
仲介手数料無料
仲介から
入居工事まで
ワンストップで対応
経験豊富なスタッフが
スピード感をもって
対応

周辺での似た条件の物件

非公開物件 多数あり!

お問い合わせフォーム