takeofficeなら掲載物件の仲介手数料は無料です

東京浜町近鉄ビル

住所 東京都中央区日本橋浜町1-3-4
交通 都営浅草線東日本橋」 徒歩3分
都営新宿線馬喰横山」 徒歩4分
竣工 1990年02月 構造 SRC
規模 地上7階, 地下1階 耐震基準 新耐震基準
床構造 - 空調設備 個別空調
天井高 2550mm 基準階面積 72.19坪(238.63m2)
コンセント容量 20VA/m2 施工会社 大日本土木

最新の募集状況や類似物件については、
こちらにお問い合わせください。

東京浜町近鉄ビル 外観

外観

  • NOW PRINTING

    エントランス

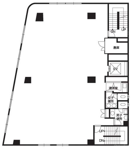
  • 基準階

    基準階

内見やお見積りなどの各種お問い合わせ

全物件
仲介手数料無料
仲介から
入居工事まで
ワンストップで対応
経験豊富なスタッフが
スピード感をもって
対応

周辺での似た条件の物件

非公開物件 多数あり!

お問い合わせフォーム