takeofficeなら掲載物件の仲介手数料は無料です

萩塚ビル

住所 東京都中央区日本橋浜町2-37-9
交通 都営新宿線浜町」 徒歩1分
東京メトロ日比谷線人形町」 徒歩7分
JR総武線(快速)馬喰町」 徒歩10分
竣工 1974年04月 構造 RC
規模 地上5階 耐震基準 旧耐震基準
床構造 - 空調設備 -
天井高 - 基準階面積 --
コンセント容量 - 施工会社

最新の募集状況や類似物件については、
こちらにお問い合わせください。

萩塚ビル 外観

外観

  • 萩塚ビル エントランス写真

    エントランス

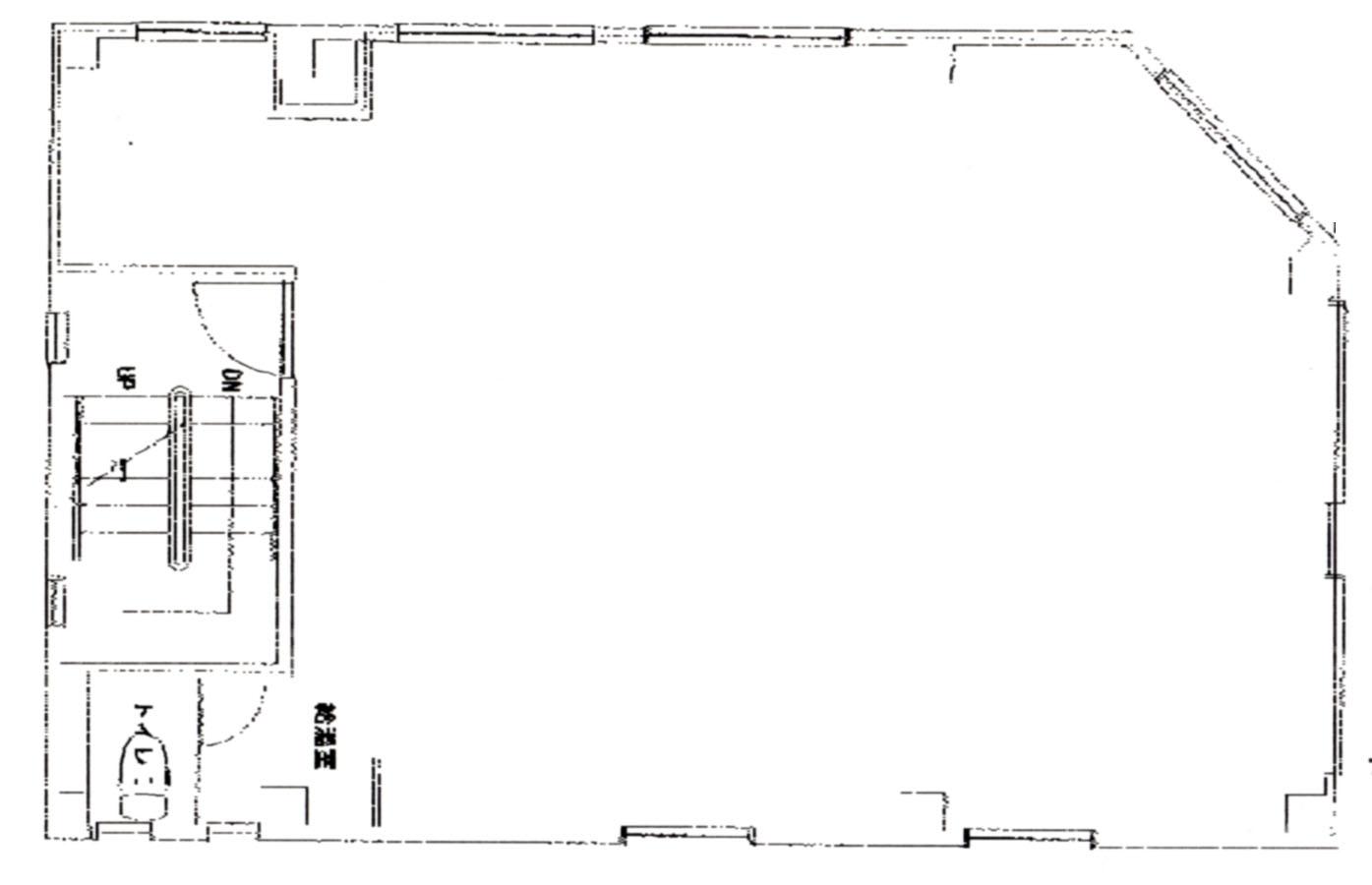
  • 2F

    2F

内見やお見積りなどの各種お問い合わせ

全物件
仲介手数料無料
仲介から
入居工事まで
ワンストップで対応
経験豊富なスタッフが
スピード感をもって
対応

周辺での似た条件の物件

非公開物件 多数あり!

お問い合わせフォーム