takeofficeなら掲載物件の仲介手数料は無料です

トヨタモビリティサービス本社ビル(旧:エスエス製薬本社ビル)

住所 東京都中央区日本橋浜町2-12-4
交通 都営新宿線浜町」 徒歩4分
東京メトロ日比谷線人形町」 徒歩5分
都営浅草線東日本橋」 徒歩6分
竣工 2008年02月 構造 鉄骨造
規模 地上10階 耐震基準 新耐震基準
床構造 フリーアクセス 100mm 空調設備 個別空調
天井高 2800mm 基準階面積 200.71坪(663.5m2)
コンセント容量 50VA/m2 施工会社 大成建設

最新の募集状況や類似物件については、
こちらにお問い合わせください。

トヨタモビリティサービス本社ビル(旧:エスエス製薬本社ビル) 外観

外観

  • トヨタモビリティサービス本社ビル(旧:エスエス製薬本社ビル) エントランス写真

    エントランス

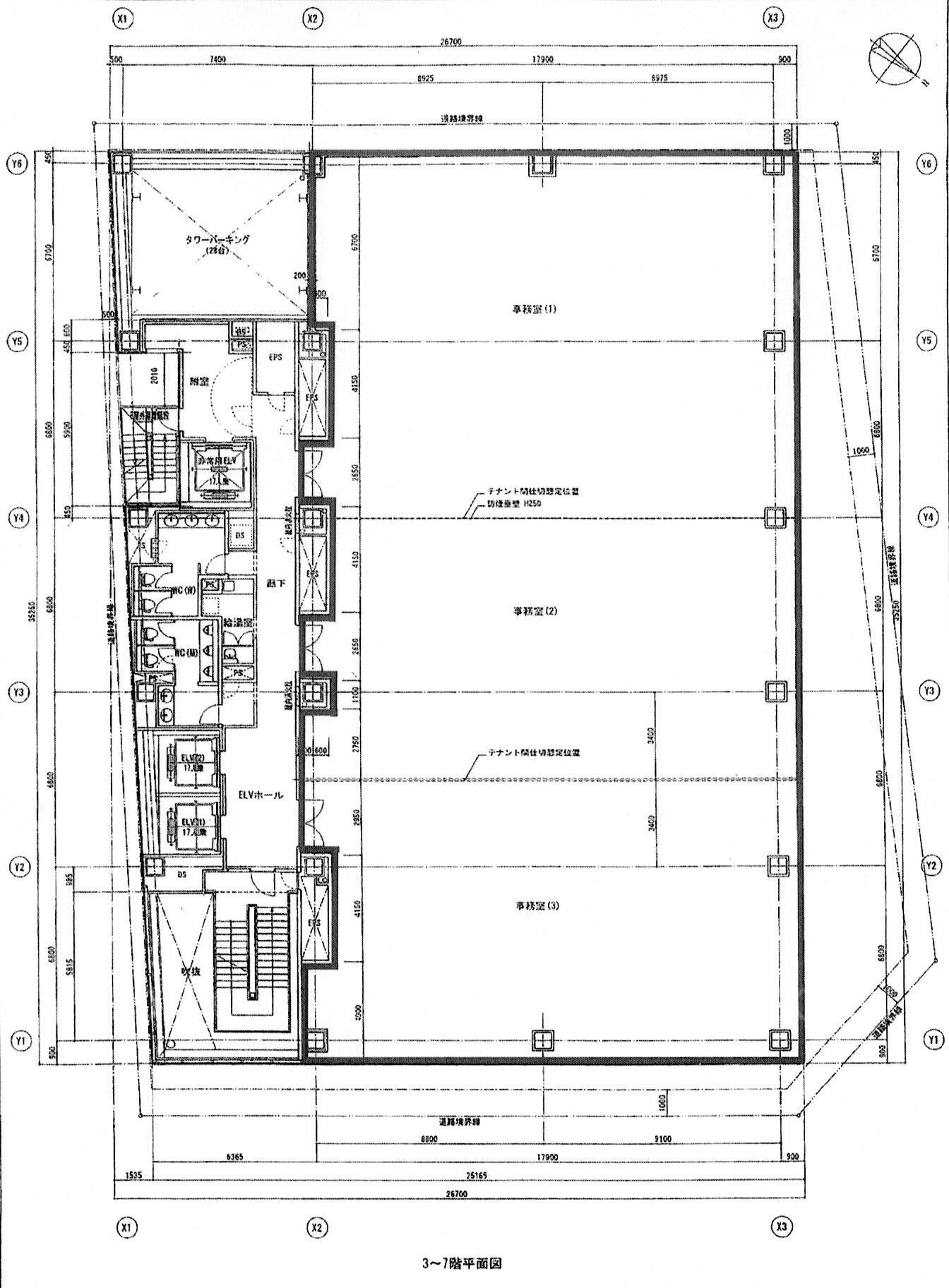
  • 基準階(3~5F)

    基準階(3~5F)

建物パンフレット

建物パンフレットは作成時点のものであり、また計画段階のものも含まれる為、実際とは異なる場合がございます。

内見やお見積りなどの各種お問い合わせ

全物件
仲介手数料無料
仲介から
入居工事まで
ワンストップで対応
経験豊富なスタッフが
スピード感をもって
対応

周辺での似た条件の物件

非公開物件 多数あり!

お問い合わせフォーム