takeofficeなら掲載物件の仲介手数料は無料です

イマス久松町ビル

住所 東京都中央区日本橋久松町5-6
交通 都営新宿線馬喰横山」 徒歩3分
都営浅草線東日本橋」 徒歩3分
JR総武線(快速)馬喰町」 徒歩6分
竣工 1974年 月 構造 SRC
規模 地上8階 耐震基準 耐震診断書有
床構造 - 空調設備 個別空調
天井高 2650mm 基準階面積 116坪(383m2)
コンセント容量 - 施工会社

最新の募集状況や類似物件については、
こちらにお問い合わせください。

イマス久松町ビル 外観

外観

  • イマス久松町ビル エントランス写真

    エントランス

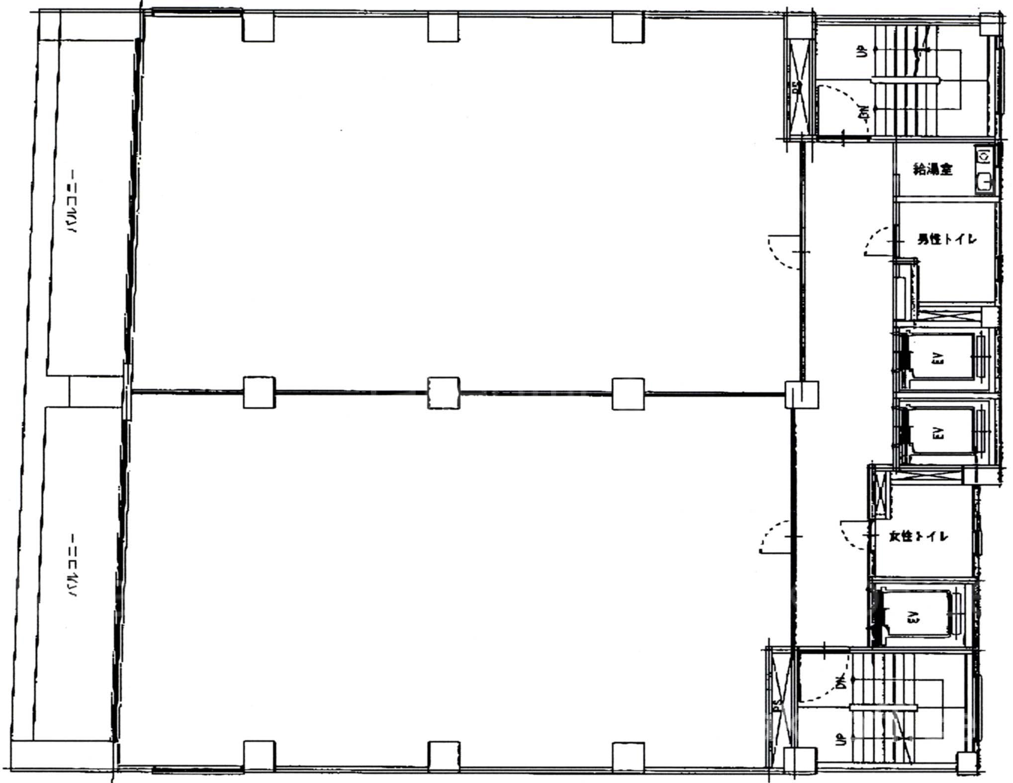
  • 5F

    5F

建物パンフレット

建物パンフレットは作成時点のものであり、また計画段階のものも含まれる為、実際とは異なる場合がございます。

内見やお見積りなどの各種お問い合わせ

全物件
仲介手数料無料
仲介から
入居工事まで
ワンストップで対応
経験豊富なスタッフが
スピード感をもって
対応

周辺での似た条件の物件

非公開物件 多数あり!

お問い合わせフォーム