takeofficeなら掲載物件の仲介手数料は無料です

第2ナカビル

住所 東京都中央区日本橋小舟町3-4
交通 東京メトロ銀座線三越前」 徒歩5分
JR総武線(快速)新日本橋」 徒歩5分
竣工 1988年02月 構造 SRC+RC
規模 地上8階, 地下1階 耐震基準 新耐震基準
床構造 - 空調設備 フロア別空調
天井高 - 基準階面積 27坪(89.26m2)
コンセント容量 - 施工会社

最新の募集状況や類似物件については、
こちらにお問い合わせください。

第2ナカビル 外観

外観

  • 第2ナカビル エントランス写真

    エントランス

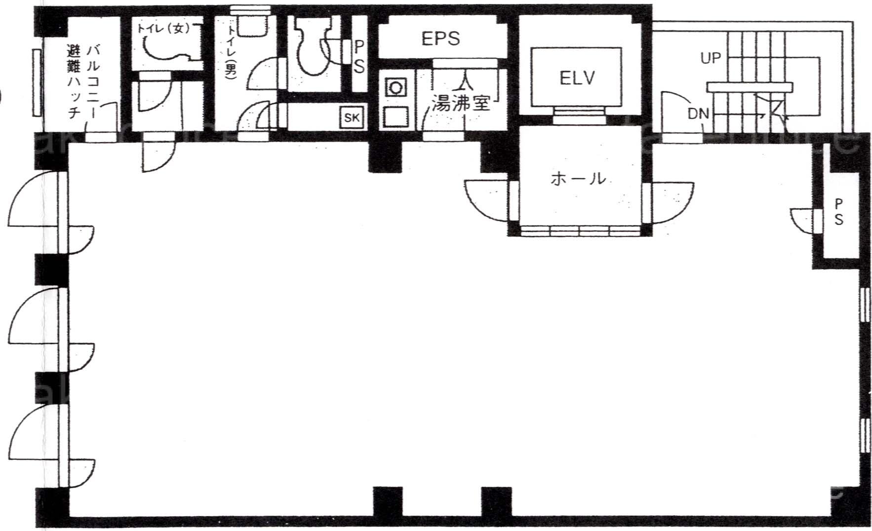
  • 基準階

    基準階

内見やお見積りなどの各種お問い合わせ

全物件
仲介手数料無料
仲介から
入居工事まで
ワンストップで対応
経験豊富なスタッフが
スピード感をもって
対応

周辺での似た条件の物件

非公開物件 多数あり!

お問い合わせフォーム