takeofficeなら掲載物件の仲介手数料は無料です

SK小舟町

住所 東京都中央区日本橋小舟町4-5
交通 JR総武線(快速)新日本橋」 徒歩3分
東京メトロ半蔵門線三越前」 徒歩4分
竣工 1990年05月 構造 鉄骨造
規模 地上8階, 地下1階 耐震基準 新耐震基準
床構造 - 空調設備 フロア別空調
天井高 2380mm 基準階面積 16.14坪(53.36m2)
コンセント容量 - 施工会社

最新の募集状況や類似物件については、
こちらにお問い合わせください。

SK小舟町 外観

外観

  • SK小舟町 エントランス写真

    エントランス

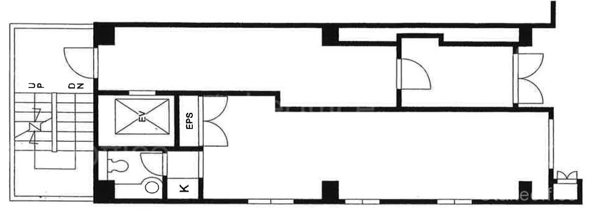
  • 基準階

    基準階

  • 1階

    1階

  • 5階

    5階

  • 7階

    7階

内見やお見積りなどの各種お問い合わせ

全物件
仲介手数料無料
仲介から
入居工事まで
ワンストップで対応
経験豊富なスタッフが
スピード感をもって
対応

周辺での似た条件の物件

非公開物件 多数あり!

お問い合わせフォーム