takeofficeなら掲載物件の仲介手数料は無料です

日本橋吉橋ビル

住所 東京都中央区日本橋小舟町13-10
交通 東京メトロ日比谷線小伝馬町」 徒歩4分
東京メトロ日比谷線人形町」 徒歩6分
JR総武線(快速)新日本橋」 徒歩6分
竣工 2009年05月 構造 RC
規模 地上6階, 地下1階 耐震基準 新耐震基準
床構造 フリーアクセス 空調設備 個別空調
天井高 - 基準階面積 41.76坪(138.05m2)
コンセント容量 - 施工会社

最新の募集状況や類似物件については、
こちらにお問い合わせください。

日本橋吉橋ビル 外観

外観

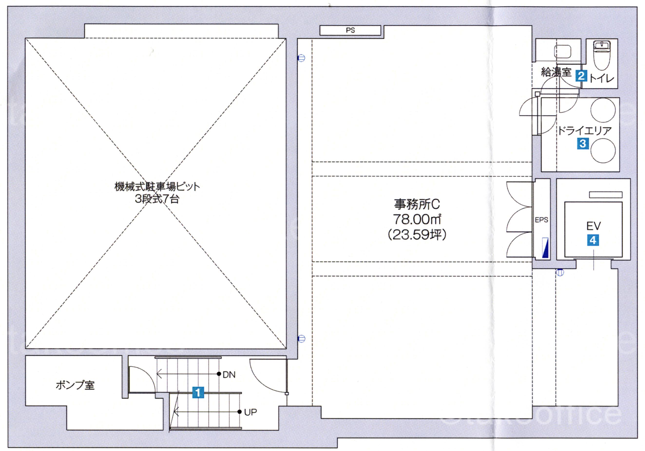
建物パンフレット

建物パンフレットは作成時点のものであり、また計画段階のものも含まれる為、実際とは異なる場合がございます。

内見やお見積りなどの各種お問い合わせ

全物件
仲介手数料無料
仲介から
入居工事まで
ワンストップで対応
経験豊富なスタッフが
スピード感をもって
対応

周辺での似た条件の物件

非公開物件 多数あり!

お問い合わせフォーム