takeofficeなら掲載物件の仲介手数料は無料です

ハイジー日本橋ビル

住所 東京都中央区日本橋小伝馬町9-9
交通 東京メトロ日比谷線小伝馬町」 徒歩2分
JR総武線(快速)馬喰町」 徒歩3分
都営新宿線馬喰横山」 徒歩3分
竣工 1987年12月 構造 SRC
規模 地上9階, 地下1階 耐震基準 新耐震基準
床構造 フリーアクセス 50mm 空調設備 個別空調
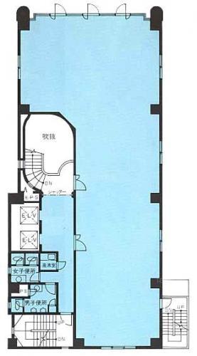
天井高 2430mm 基準階面積 81.85坪(270.58m2)
コンセント容量 - 施工会社 前田建設工業

最新の募集状況や類似物件については、
こちらにお問い合わせください。

ハイジー日本橋ビル 外観

外観

建物パンフレット

建物パンフレットは作成時点のものであり、また計画段階のものも含まれる為、実際とは異なる場合がございます。

内見やお見積りなどの各種お問い合わせ

全物件
仲介手数料無料
仲介から
入居工事まで
ワンストップで対応
経験豊富なスタッフが
スピード感をもって
対応

周辺での似た条件の物件

非公開物件 多数あり!

お問い合わせフォーム