takeofficeなら掲載物件の仲介手数料は無料です

石倉ビル

住所 東京都中央区日本橋大伝馬町2-5
交通 東京メトロ日比谷線小伝馬町」 徒歩3分
JR総武線(快速)新日本橋」 徒歩5分
竣工 1962年11月 構造 SRC
規模 地上6階, 地下1階 耐震基準 旧耐震基準
床構造 - 空調設備 -
天井高 - 基準階面積 50坪(165m2)
コンセント容量 - 施工会社

最新の募集状況や類似物件については、
こちらにお問い合わせください。

石倉ビル 外観

外観

  • 石倉ビル エントランス写真

    エントランス

  • 1F

    1F

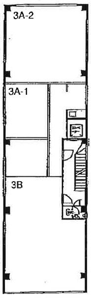
  • 3F

    3F

  • 4F

    4F

  • 5F

    5F

内見やお見積りなどの各種お問い合わせ

全物件
仲介手数料無料
仲介から
入居工事まで
ワンストップで対応
経験豊富なスタッフが
スピード感をもって
対応

周辺での似た条件の物件

非公開物件 多数あり!

お問い合わせフォーム