takeofficeなら掲載物件の仲介手数料は無料です

住友生命日本橋大伝馬町ビル

住所 東京都中央区日本橋大伝馬町14-1
交通 東京メトロ日比谷線小伝馬町」 徒歩2分
都営新宿線馬喰横山」 徒歩4分
竣工 1984年06月 構造 SRC
規模 地上8階, 地下1階 耐震基準 新耐震基準
床構造 - 空調設備 -
天井高 - 基準階面積 158坪(522m2)
コンセント容量 - 施工会社

最新の募集状況や類似物件については、
こちらにお問い合わせください。

住友生命日本橋大伝馬町ビル 外観

外観

  • 住友生命日本橋大伝馬町ビル エントランス写真

    エントランス

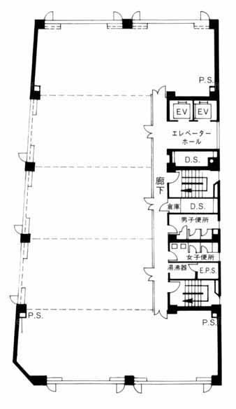
  • 規準階(2~5F)

    規準階(2~5F)

  • 1F

    1F

  • 6~7F

    6~7F

内見やお見積りなどの各種お問い合わせ

全物件
仲介手数料無料
仲介から
入居工事まで
ワンストップで対応
経験豊富なスタッフが
スピード感をもって
対応

周辺での似た条件の物件

非公開物件 多数あり!

お問い合わせフォーム