takeofficeなら掲載物件の仲介手数料は無料です

住友生命日本橋富沢町ビル

住所 東京都中央区日本橋富沢町9-19
交通 都営新宿線馬喰横山」 徒歩2分
都営浅草線東日本橋」 徒歩2分
東京メトロ日比谷線小伝馬町」 徒歩5分
竣工 1984年10月 構造 SRC
規模 地上8階, 地下1階 耐震基準 新耐震基準
床構造 フリーアクセス 空調設備 個別空調
天井高 2480mm 基準階面積 233.8坪(772.89m2)
コンセント容量 20VA/m2 施工会社

最新の募集状況や類似物件については、
こちらにお問い合わせください。

住友生命日本橋富沢町ビル 外観

外観

  • 住友生命日本橋富沢町ビル エントランス写真

    エントランス

  • 基準階(2~7F)

    基準階(2~7F)

  • 1F

    1F

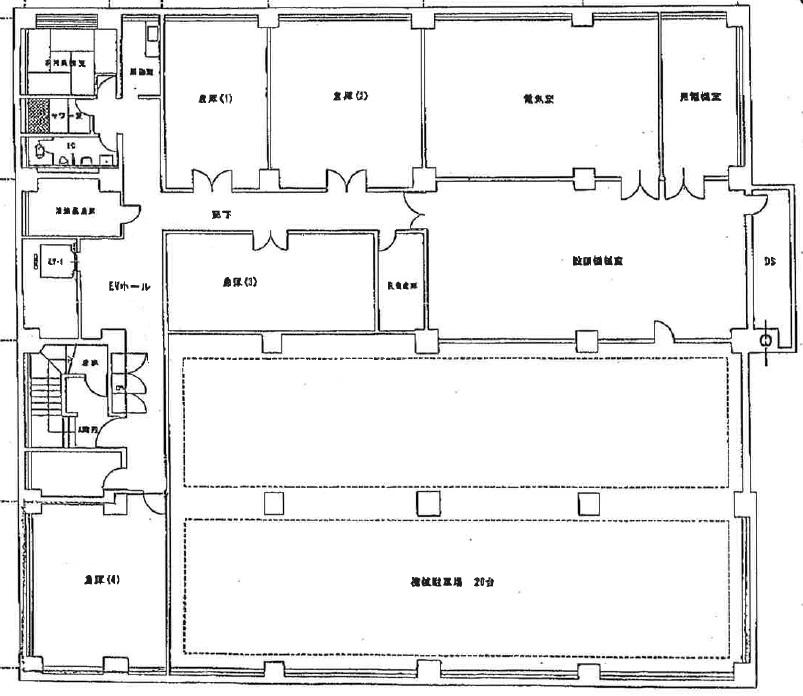
  • B1F

    B1F

内見やお見積りなどの各種お問い合わせ

全物件
仲介手数料無料
仲介から
入居工事まで
ワンストップで対応
経験豊富なスタッフが
スピード感をもって
対応

周辺での似た条件の物件

非公開物件 多数あり!

お問い合わせフォーム