takeofficeなら掲載物件の仲介手数料は無料です

英守東京ビル

住所 東京都中央区日本橋富沢町11-6
交通 東京メトロ日比谷線小伝馬町」 徒歩6分
都営新宿線馬喰横山」 徒歩4分
JR総武線(快速)馬喰町」 徒歩6分
竣工 1973年08月 構造 鉄骨造
規模 地上7階 耐震基準 旧耐震基準
床構造 3WAY 空調設備 個別空調
天井高 2740mm 基準階面積 24.62坪(81.39m2)
コンセント容量 50VA/m2 施工会社

最新の募集状況や類似物件については、
こちらにお問い合わせください。

英守東京ビル 外観

外観

  • 英守東京ビル エントランス写真

    エントランス

  • 基準階(2~5F)

    基準階(2~5F)

  • 1F

    1F

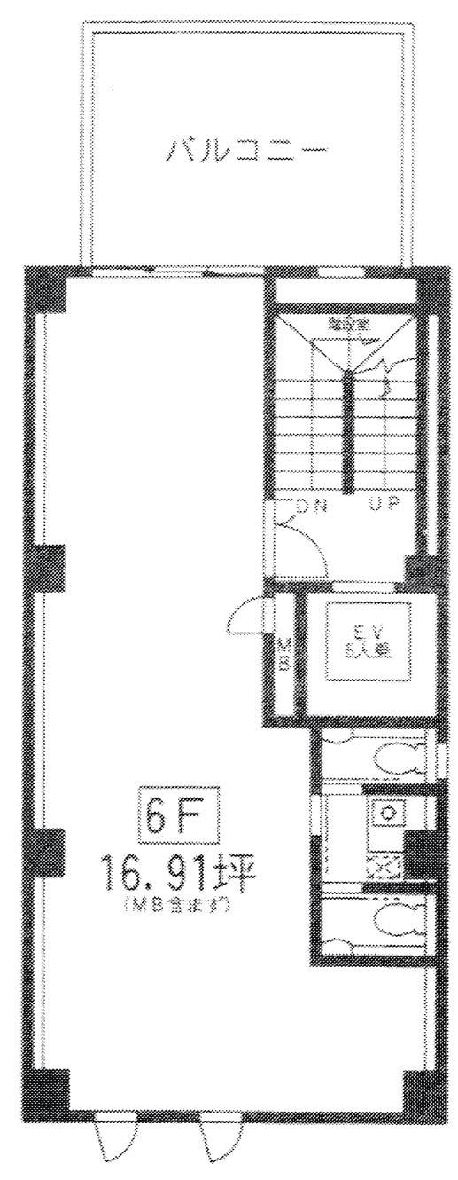
  • 6F

    6F

  • 7F

    7F

内見やお見積りなどの各種お問い合わせ

全物件
仲介手数料無料
仲介から
入居工事まで
ワンストップで対応
経験豊富なスタッフが
スピード感をもって
対応

周辺での似た条件の物件

非公開物件 多数あり!

お問い合わせフォーム