takeofficeなら掲載物件の仲介手数料は無料です

サンライズビル

住所 東京都中央区日本橋富沢町11-12
交通 都営新宿線馬喰横山」 徒歩4分
JR総武線(快速)馬喰町」 徒歩6分
東京メトロ日比谷線小伝馬町」 徒歩6分
竣工 1992年08月 構造 鉄骨造
規模 地上10階, 地下2階 耐震基準 新耐震基準
床構造 - 空調設備 セントラル空調
天井高 - 基準階面積 --
コンセント容量 - 施工会社

最新の募集状況や類似物件については、
こちらにお問い合わせください。

サンライズビル 外観

外観

  • サンライズビル エントランス写真

    エントランス

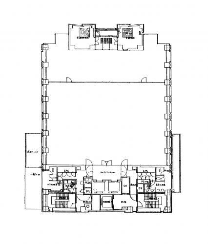
  • 基準階(3~8F)

    基準階(3~8F)

  • 2F

    2F

内見やお見積りなどの各種お問い合わせ

全物件
仲介手数料無料
仲介から
入居工事まで
ワンストップで対応
経験豊富なスタッフが
スピード感をもって
対応

周辺での似た条件の物件

非公開物件 多数あり!

お問い合わせフォーム