takeofficeなら掲載物件の仲介手数料は無料です

第3朝日ビル

住所 東京都中央区日本橋堀留町1-2-15
交通 JR総武線(快速)新日本橋」 徒歩5分
東京メトロ日比谷線小伝馬町」 徒歩5分
東京メトロ銀座線三越前」 徒歩5分
竣工 1983年09月 構造 SRC
規模 地上8階 耐震基準 新耐震基準
床構造 フリーアクセス 空調設備 フロア別空調
天井高 2500mm 基準階面積 62.85坪(207.77m2)
コンセント容量 - 施工会社

最新の募集状況や類似物件については、
こちらにお問い合わせください。

第3朝日ビル 外観

外観

  • 第3朝日ビル エントランス写真

    エントランス

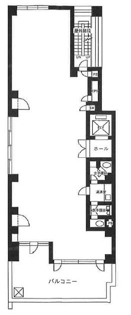
  • 基準階(3~6F)

    基準階(3~6F)

  • 2F

    2F

  • 7F

    7F

  • 8F

    8F

内見やお見積りなどの各種お問い合わせ

全物件
仲介手数料無料
仲介から
入居工事まで
ワンストップで対応
経験豊富なスタッフが
スピード感をもって
対応

周辺での似た条件の物件

非公開物件 多数あり!

お問い合わせフォーム