takeofficeなら掲載物件の仲介手数料は無料です

日本橋MIビル

住所 東京都中央区日本橋堀留町1-4-3
交通 東京メトロ日比谷線小伝馬町」 徒歩5分
都営浅草線人形町」 徒歩6分
JR総武線(快速)新日本橋」 徒歩7分
竣工 1968年04月 構造 RC
規模 地上6階 耐震基準 旧耐震基準
床構造 - 空調設備 個別空調
天井高 2500mm 基準階面積 42.45坪(140.33m2)
コンセント容量 - 施工会社

最新の募集状況や類似物件については、
こちらにお問い合わせください。

日本橋MIビル 外観

外観

  • 日本橋MIビル エントランス写真

    エントランス

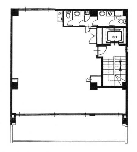
  • 基準階(2~4F)

    基準階(2~4F)

  • 1F

    1F

  • 5F

    5F

  • 6F

    6F

内見やお見積りなどの各種お問い合わせ

全物件
仲介手数料無料
仲介から
入居工事まで
ワンストップで対応
経験豊富なスタッフが
スピード感をもって
対応

周辺での似た条件の物件

非公開物件 多数あり!

お問い合わせフォーム