takeofficeなら掲載物件の仲介手数料は無料です

YOUビル

住所 東京都中央区日本橋堀留町1-5-7
交通 東京メトロ日比谷線人形町」 徒歩5分
東京メトロ日比谷線小伝馬町」 徒歩5分
都営新宿線馬喰横山」 徒歩8分
竣工 1976年03月 構造 SRC
規模 地上9階, 地下1階 耐震基準 旧耐震基準
床構造 フリーアクセス 空調設備 セントラル空調
天井高 2400mm 基準階面積 --
コンセント容量 - 施工会社

最新の募集状況や類似物件については、
こちらにお問い合わせください。

YOUビル 外観

外観

  • YOUビル エントランス写真

    エントランス

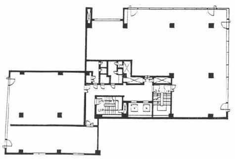
  • 基準階(3~5F)

    基準階(3~5F)

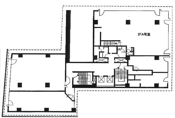
  • 2F

    2F

  • 6~7F

    6~7F

  • 9F

    9F

内見やお見積りなどの各種お問い合わせ

全物件
仲介手数料無料
仲介から
入居工事まで
ワンストップで対応
経験豊富なスタッフが
スピード感をもって
対応

周辺での似た条件の物件

非公開物件 多数あり!

お問い合わせフォーム