takeofficeなら掲載物件の仲介手数料は無料です

啓明商事Kビル

住所 東京都中央区日本橋堀留町1-5-9
交通 東京メトロ日比谷線人形町」 徒歩4分
東京メトロ日比谷線小伝馬町」 徒歩5分
竣工 1991年05月 構造 RC
規模 地上7階, 地下1階 耐震基準 新耐震基準
床構造 - 空調設備 個別空調
天井高 - 基準階面積 44.9坪(148.43m2)
コンセント容量 - 施工会社

最新の募集状況や類似物件については、
こちらにお問い合わせください。

啓明商事Kビル 外観

外観

  • 啓明商事Kビル エントランス写真

    エントランス

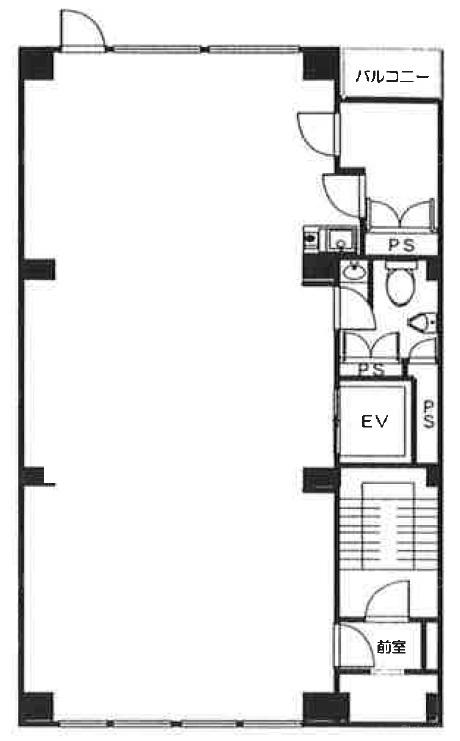
  • 基準階

    基準階

  • 1F

    1F

  • 7F

    7F

内見やお見積りなどの各種お問い合わせ

全物件
仲介手数料無料
仲介から
入居工事まで
ワンストップで対応
経験豊富なスタッフが
スピード感をもって
対応

周辺での似た条件の物件

非公開物件 多数あり!

お問い合わせフォーム