takeofficeなら掲載物件の仲介手数料は無料です

城野ビル2

住所 東京都中央区日本橋大伝馬町17-1
交通 都営新宿線馬喰横山」 徒歩2分
東京メトロ日比谷線小伝馬町」 徒歩4分
JR総武線(快速)馬喰町」 徒歩5分
竣工 2007年09月 構造 RC
規模 地上10階 耐震基準 新耐震基準
床構造 フリーアクセス 空調設備 個別空調
天井高 - 基準階面積 27.11坪(89.62m2)
コンセント容量 - 施工会社

最新の募集状況や類似物件については、
こちらにお問い合わせください。

城野ビル2 外観

外観

  • 城野ビル2 エントランス写真

    エントランス

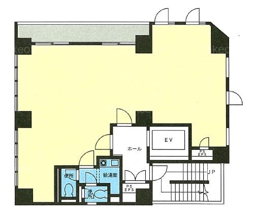
  • 基準階(2~8F)

    基準階(2~8F)

  • 1F

    1F

内見やお見積りなどの各種お問い合わせ

全物件
仲介手数料無料
仲介から
入居工事まで
ワンストップで対応
経験豊富なスタッフが
スピード感をもって
対応

周辺での似た条件の物件

非公開物件 多数あり!

お問い合わせフォーム