takeofficeなら掲載物件の仲介手数料は無料です

第1テイケイビル

住所 東京都中央区日本橋蛎殻町1-13-4
交通 東京メトロ半蔵門線水天宮前」 徒歩3分
東京メトロ日比谷線人形町」 徒歩4分
東京メトロ東西線茅場町」 徒歩6分
竣工 1984年02月 構造 SRC
規模 地上5階 耐震基準 新耐震基準
床構造 - 空調設備 -
天井高 - 基準階面積 38.03坪(125.72m2)
コンセント容量 - 施工会社

最新の募集状況や類似物件については、
こちらにお問い合わせください。

第1テイケイビル 外観

外観

  • 第1テイケイビル エントランス写真

    エントランス

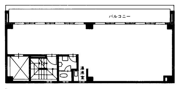
  • 基準階(2~3F)

    基準階(2~3F)

  • 4F

    4F

  • 5F

    5F

内見やお見積りなどの各種お問い合わせ

全物件
仲介手数料無料
仲介から
入居工事まで
ワンストップで対応
経験豊富なスタッフが
スピード感をもって
対応

周辺での似た条件の物件

非公開物件 多数あり!

お問い合わせフォーム