takeofficeなら掲載物件の仲介手数料は無料です

ネオテック水天宮ビル(旧:FH日本橋ビル)

住所 東京都中央区日本橋蛎殻町1-29-9
交通 東京メトロ半蔵門線水天宮前」 徒歩1分
東京メトロ日比谷線人形町」 徒歩4分
東京メトロ東西線茅場町」 徒歩8分
竣工 1987年11月 構造 SRC
規模 地上7階, 地下2階 耐震基準 新耐震基準
床構造 フリーアクセス 空調設備 個別空調
天井高 2500mm 基準階面積 151坪(500m2)
コンセント容量 - 施工会社

最新の募集状況や類似物件については、
こちらにお問い合わせください。

ネオテック水天宮ビル(旧:FH日本橋ビル) 外観

外観

  • ネオテック水天宮ビル(旧:FH日本橋ビル) エントランス写真

    エントランス

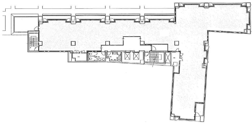
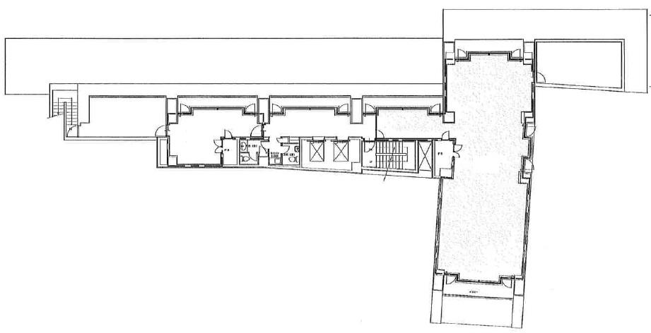
  • 1F

    1F

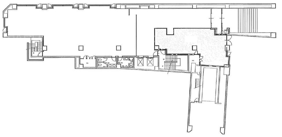
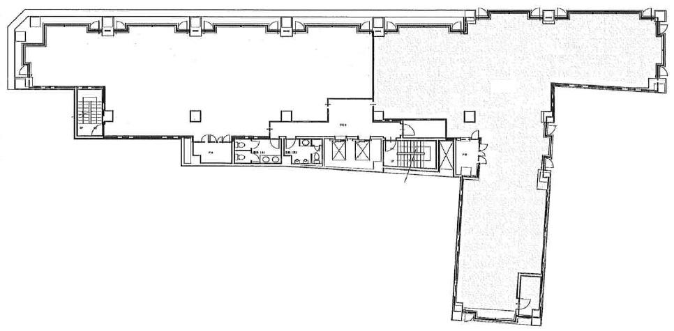
  • 2F

    2F

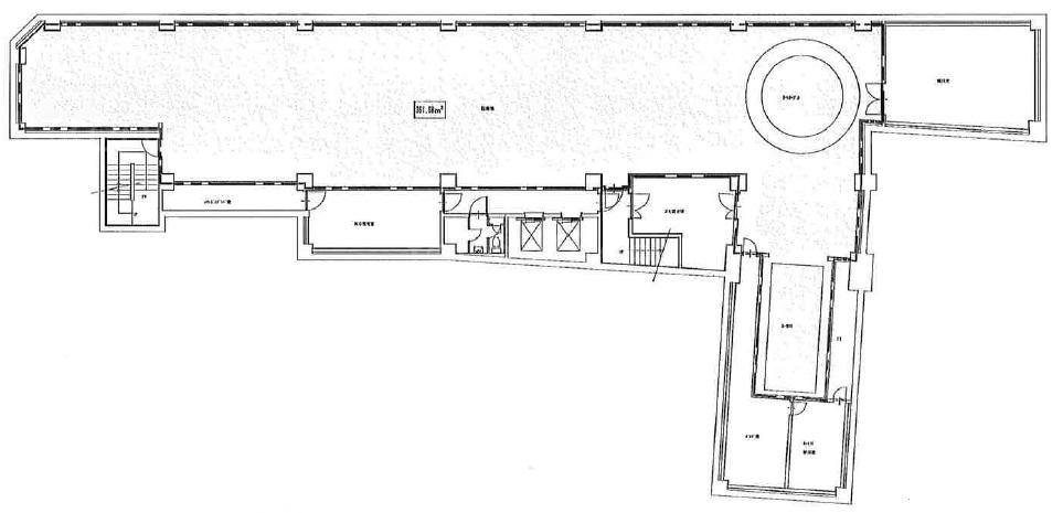
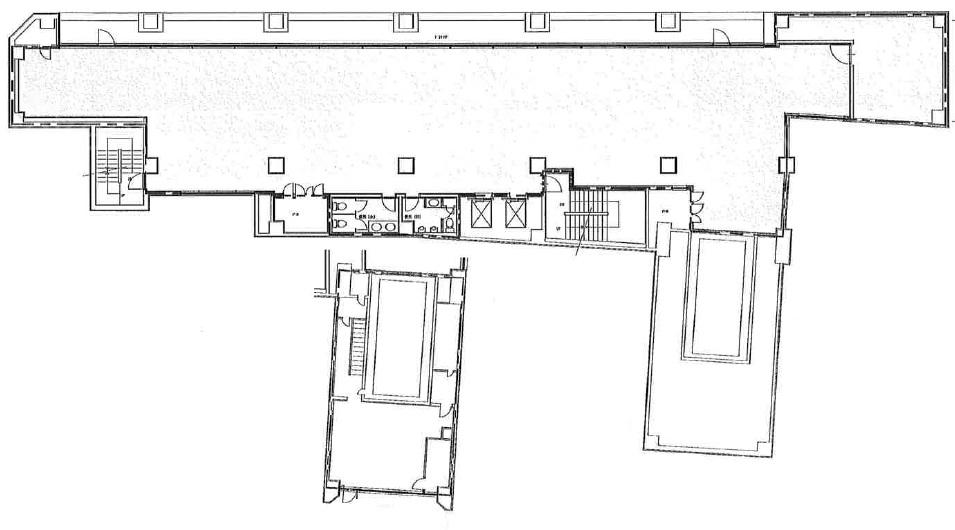
  • 3F

    3F

  • 4F

    4F

  • 5F

    5F

  • 6F

    6F

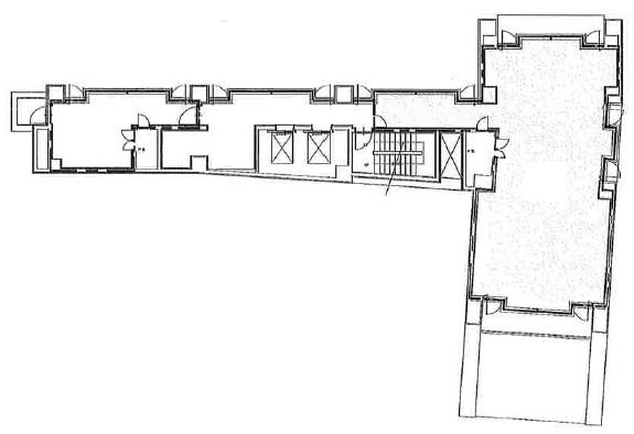
  • 7F

    7F

  • B1F・M2

    B1F・M2

  • B2F

    B2F

内見やお見積りなどの各種お問い合わせ

全物件
仲介手数料無料
仲介から
入居工事まで
ワンストップで対応
経験豊富なスタッフが
スピード感をもって
対応

周辺での似た条件の物件

非公開物件 多数あり!

お問い合わせフォーム