takeofficeなら掲載物件の仲介手数料は無料です

高林ビル

住所 東京都中央区日本橋蛎殻町2-15-4
交通 東京メトロ半蔵門線水天宮前」 徒歩3分
東京メトロ日比谷線人形町」 徒歩6分
都営新宿線浜町」 徒歩8分
竣工 1990年 月 構造 -
規模 地上6階 耐震基準 新耐震基準
床構造 - 空調設備 -
天井高 - 基準階面積 --
コンセント容量 - 施工会社

最新の募集状況や類似物件については、
こちらにお問い合わせください。

高林ビル 外観

外観

  • 高林ビル エントランス写真

    エントランス

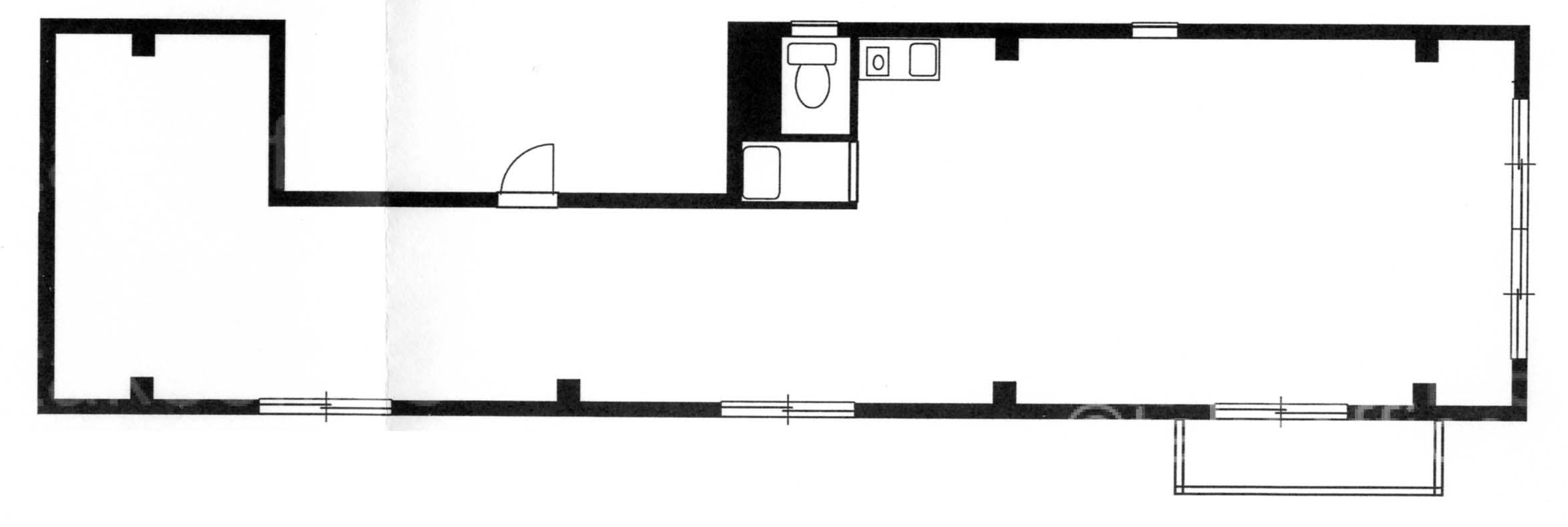
  • 基準階

    基準階

内見やお見積りなどの各種お問い合わせ

全物件
仲介手数料無料
仲介から
入居工事まで
ワンストップで対応
経験豊富なスタッフが
スピード感をもって
対応

周辺での似た条件の物件

非公開物件 多数あり!

お問い合わせフォーム