takeofficeなら掲載物件の仲介手数料は無料です

山万ビル

住所 東京都中央区日本橋小網町6-1
交通 東京メトロ東西線茅場町」 徒歩3分
東京メトロ半蔵門線水天宮前」 徒歩5分
都営浅草線日本橋」 徒歩8分
竣工 1977年04月 構造 SRC
規模 地上13階, 地下1階 耐震基準 新耐震基準
床構造 フリーアクセス 50mm 空調設備 セントラル+個別
天井高 2350mm 基準階面積 375.42坪(1241.06m2)
コンセント容量 40VA/m2 施工会社

最新の募集状況や類似物件については、
こちらにお問い合わせください。

山万ビル 外観

外観

  • 山万ビル エントランス写真

    エントランス

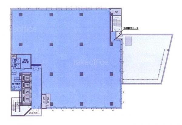
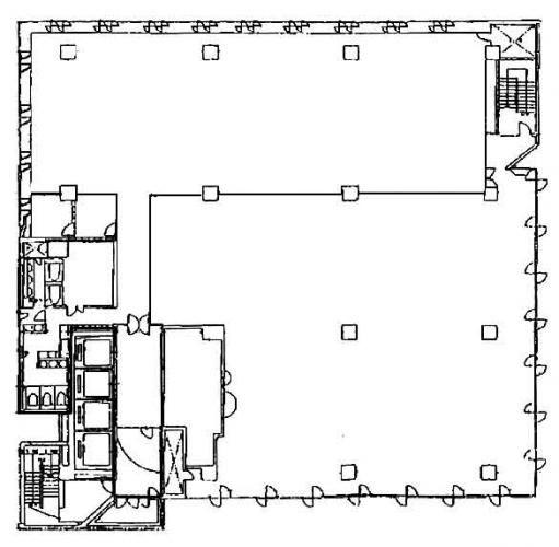
  • 基準階(7~9F)

    基準階(7~9F)

  • 1F

    1F

  • 2F

    2F

  • 3F

    3F

  • 4F

    4F

  • 5F

    5F

  • 6F

    6F

  • 10~12F

    10~12F

  • 12F

    12F

建物パンフレット

建物パンフレットは作成時点のものであり、また計画段階のものも含まれる為、実際とは異なる場合がございます。

内見やお見積りなどの各種お問い合わせ

全物件
仲介手数料無料
仲介から
入居工事まで
ワンストップで対応
経験豊富なスタッフが
スピード感をもって
対応

周辺での似た条件の物件

非公開物件 多数あり!

お問い合わせフォーム