takeofficeなら掲載物件の仲介手数料は無料です

人形町センタービル

住所 東京都中央区日本橋人形町1-4-10
交通 東京メトロ日比谷線人形町」 徒歩1分
東京メトロ半蔵門線水天宮前」 徒歩5分
竣工 1994年03月 構造 SRC
規模 地上9階, 地下2階 耐震基準 新耐震基準
床構造 フリーアクセス 空調設備 個別空調
天井高 2600mm 基準階面積 110.67坪(365.85m2)
コンセント容量 - 施工会社 鹿島建設
坪面積 用途 賃料 坪単価 共益費 入居可能日
7 110.67坪 事務所 募集終了登録日: 2025年12月01日
人形町センタービル 外観

外観

  • 人形町センタービル エントランス写真

    エントランス

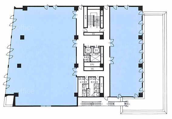
  • 基準階(5~8F)

    基準階(5~8F)

  • 1F

    1F

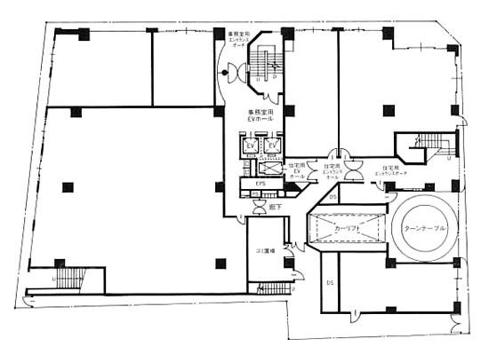
  • 3~4F

    3~4F

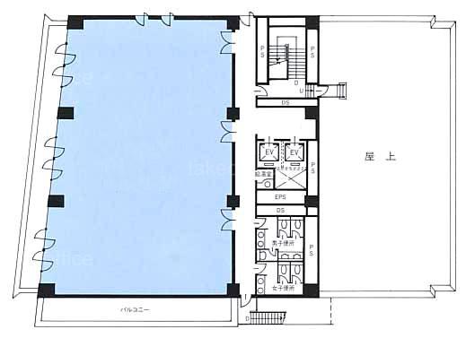
  • 9F

    9F

建物パンフレット

建物パンフレットは作成時点のものであり、また計画段階のものも含まれる為、実際とは異なる場合がございます。

内見やお見積りなどの各種お問い合わせ

全物件
仲介手数料無料
仲介から
入居工事まで
ワンストップで対応
経験豊富なスタッフが
スピード感をもって
対応

※「ご相談」と記載されている項目について
賃貸人が募集賃料条件を守秘義務の関係から明示していない場合に、【ご相談】と記載しております。
フリーレント(賃料免除)期間、使用面積、入居時期、テナント様の与信などによりご提示できる条件が若干変化いたします。
お手数ですが、詳細につきましては、上記よりお問い合わせください。

周辺での似た条件の物件

非公開物件 多数あり!

お問い合わせフォーム