takeofficeなら掲載物件の仲介手数料は無料です

エル人形町

住所 東京都中央区日本橋人形町2-7-10
交通 都営浅草線人形町」 徒歩2分
東京メトロ半蔵門線水天宮前」 徒歩5分
都営新宿線浜町」 徒歩7分
竣工 1989年04月 構造 SRC
規模 地上10階, 地下1階 耐震基準 新耐震基準
床構造 フリーアクセス 空調設備 個別空調
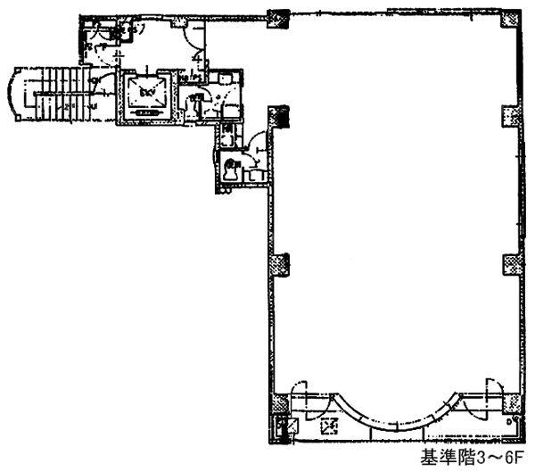
天井高 2450mm 基準階面積 49.97坪(165.19m2)
コンセント容量 - 施工会社

最新の募集状況や類似物件については、
こちらにお問い合わせください。

エル人形町 外観

外観

内見やお見積りなどの各種お問い合わせ

全物件
仲介手数料無料
仲介から
入居工事まで
ワンストップで対応
経験豊富なスタッフが
スピード感をもって
対応

周辺での似た条件の物件

非公開物件 多数あり!

お問い合わせフォーム