takeofficeなら掲載物件の仲介手数料は無料です

オーキッドプレイス人形町3丁目

住所 東京都中央区日本橋人形町3-5-4
交通 東京メトロ日比谷線人形町」 徒歩3分
東京メトロ半蔵門線水天宮前」 徒歩7分
東京メトロ日比谷線小伝馬町」 徒歩7分
竣工 1989年05月 構造 SRC+RC
規模 地上7階, 地下1階 耐震基準 新耐震基準
床構造 フリーアクセス 空調設備 個別空調
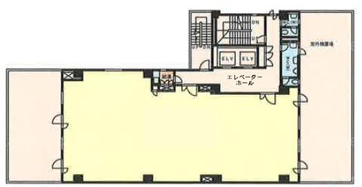
天井高 2440mm 基準階面積 101.54坪(335.67m2)
コンセント容量 - 施工会社

最新の募集状況や類似物件については、
こちらにお問い合わせください。

オーキッドプレイス人形町3丁目 外観

外観

内見やお見積りなどの各種お問い合わせ

全物件
仲介手数料無料
仲介から
入居工事まで
ワンストップで対応
経験豊富なスタッフが
スピード感をもって
対応

周辺での似た条件の物件

非公開物件 多数あり!

お問い合わせフォーム