takeofficeなら掲載物件の仲介手数料は無料です

東成ビルディング

住所 東京都中央区日本橋箱崎町18-10
交通 東京メトロ半蔵門線水天宮前」 徒歩2分
東京メトロ東西線茅場町」 徒歩5分
竣工 1973年10月 構造 SRC+RC
規模 地上7階 耐震基準 新耐震基準
床構造 フリーアクセス 50mm 空調設備 個別空調
天井高 2350mm 基準階面積 93.74坪(309.88m2)
コンセント容量 - 施工会社

最新の募集状況や類似物件については、
こちらにお問い合わせください。

東成ビルディング 外観

外観

  • 東成ビルディング エントランス写真

    エントランス

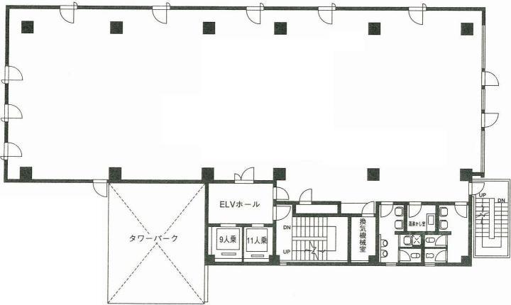
  • 基準階(2~7F)

    基準階(2~7F)

  • 1F

    1F

内見やお見積りなどの各種お問い合わせ

全物件
仲介手数料無料
仲介から
入居工事まで
ワンストップで対応
経験豊富なスタッフが
スピード感をもって
対応

周辺での似た条件の物件

非公開物件 多数あり!

お問い合わせフォーム