takeofficeなら掲載物件の仲介手数料は無料です

A.i.Nihombashi EAST

住所 東京都中央区日本橋箱崎町30-1
交通 東京メトロ半蔵門線水天宮前」 徒歩2分
東京メトロ日比谷線人形町」 徒歩8分
竣工 1981年07月 構造 SRC
規模 地上10階, 地下1階 耐震基準 耐震診断書有
床構造 フリーアクセス 100mm 空調設備 個別空調
天井高 2500mm 基準階面積 184.74坪(610.71m2)
コンセント容量 - 施工会社

最新の募集状況や類似物件については、
こちらにお問い合わせください。

A.i.Nihombashi EAST 外観

外観

  • A.i.Nihombashi EAST エントランス写真

    エントランス

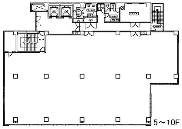
  • 基準階(7~10F)

    基準階(7~10F)

  • 1F

    1F

建物パンフレット

建物パンフレットは作成時点のものであり、また計画段階のものも含まれる為、実際とは異なる場合がございます。

内見やお見積りなどの各種お問い合わせ

全物件
仲介手数料無料
仲介から
入居工事まで
ワンストップで対応
経験豊富なスタッフが
スピード感をもって
対応

周辺での似た条件の物件

非公開物件 多数あり!

お問い合わせフォーム