takeofficeなら掲載物件の仲介手数料は無料です

さくら室町ビル

住所 東京都中央区日本橋室町4-5-1
交通 JR総武線(快速)新日本橋」 徒歩2分
JR山手線神田」 徒歩5分
東京メトロ銀座線三越前」 徒歩8分
竣工 1993年03月 構造 鉄骨造+SRC
規模 地上12階, 地下1階 耐震基準 新耐震基準
床構造 フリーアクセス 100mm 空調設備 セントラル空調
天井高 2600mm 基準階面積 --
コンセント容量 - 施工会社

最新の募集状況や類似物件については、
こちらにお問い合わせください。

さくら室町ビル 外観

外観

  • さくら室町ビル エントランス写真

    エントランス

  • 基準階

    基準階

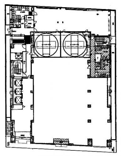
  • 1F

    1F

内見やお見積りなどの各種お問い合わせ

全物件
仲介手数料無料
仲介から
入居工事まで
ワンストップで対応
経験豊富なスタッフが
スピード感をもって
対応

周辺での似た条件の物件

非公開物件 多数あり!

お問い合わせフォーム