takeofficeなら掲載物件の仲介手数料は無料です

ストークビルヂング本石

住所 東京都中央区日本橋本石町3-2-6
交通 JR総武線(快速)新日本橋」 徒歩5分
東京メトロ銀座線三越前」 徒歩5分
JR山手線神田」 徒歩8分
竣工 1974年12月 構造 SRC+鉄骨造
規模 地上10階 耐震基準 旧耐震基準
床構造 フリーアクセス 空調設備 個別空調
天井高 2350mm 基準階面積 65.42坪(216.26m2)
コンセント容量 - 施工会社

最新の募集状況や類似物件については、
こちらにお問い合わせください。

ストークビルヂング本石 外観

外観

  • ストークビルヂング本石 エントランス写真

    エントランス

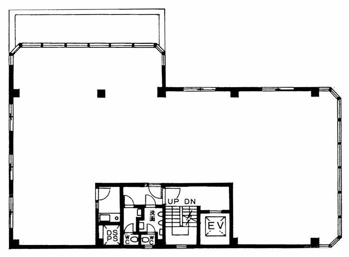
  • 6F

    6F

内見やお見積りなどの各種お問い合わせ

全物件
仲介手数料無料
仲介から
入居工事まで
ワンストップで対応
経験豊富なスタッフが
スピード感をもって
対応

周辺での似た条件の物件

非公開物件 多数あり!

お問い合わせフォーム