takeofficeなら掲載物件の仲介手数料は無料です

第10中央ビル

住所 東京都中央区日本橋本町1-5-6
交通 東京メトロ銀座線三越前」 徒歩2分
JR総武線(快速)新日本橋」 徒歩2分
東京メトロ東西線日本橋」 徒歩5分
竣工 1973年11月 構造 SRC
規模 地上9階, 地下2階 耐震基準 新耐震基準
床構造 フリーアクセス 50mm 空調設備 個別空調
天井高 2550mm 基準階面積 242坪(799m2)
コンセント容量 - 施工会社

最新の募集状況や類似物件については、
こちらにお問い合わせください。

第10中央ビル 外観

外観

  • 第10中央ビル エントランス写真

    エントランス

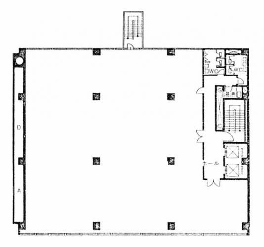
  • 基準階(4~9F)

    基準階(4~9F)

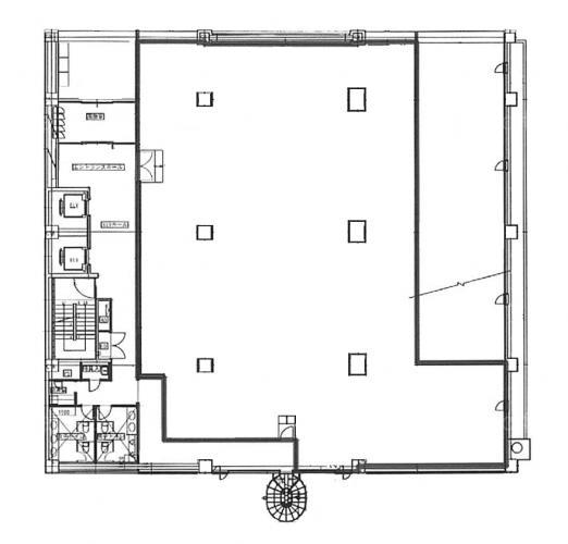
  • 1F

    1F

  • 2~3F

    2~3F

内見やお見積りなどの各種お問い合わせ

全物件
仲介手数料無料
仲介から
入居工事まで
ワンストップで対応
経験豊富なスタッフが
スピード感をもって
対応

周辺での似た条件の物件

非公開物件 多数あり!

お問い合わせフォーム