takeofficeなら掲載物件の仲介手数料は無料です

オージー東京ビルディング

住所 東京都中央区日本橋本町2-8-7
交通 東京メトロ日比谷線小伝馬町」 徒歩3分
JR総武線(快速)新日本橋」 徒歩3分
東京メトロ半蔵門線三越前」 徒歩6分
竣工 1965年10月 構造 SRC
規模 地上11階, 地下3階 耐震基準 新耐震基準
床構造 フリーアクセス 50mm 空調設備 個別空調
天井高 2410mm 基準階面積 181坪(598m2)
コンセント容量 - 施工会社

最新の募集状況や類似物件については、
こちらにお問い合わせください。

オージー東京ビルディング 外観

外観

  • オージー東京ビルディング エントランス写真

    エントランス

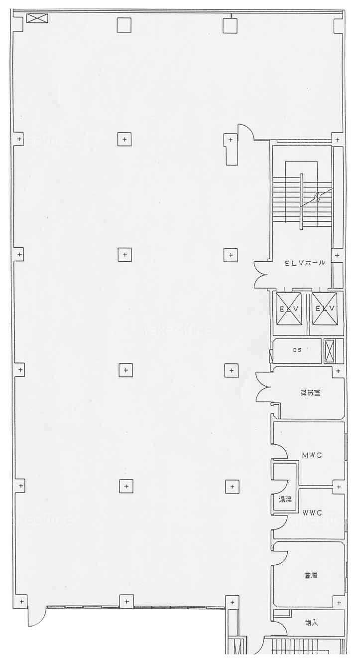
  • 基準階(6F)

    基準階(6F)

内見やお見積りなどの各種お問い合わせ

全物件
仲介手数料無料
仲介から
入居工事まで
ワンストップで対応
経験豊富なスタッフが
スピード感をもって
対応

周辺での似た条件の物件

非公開物件 多数あり!

お問い合わせフォーム