takeofficeなら掲載物件の仲介手数料は無料です

データ日本橋本町ビル

住所 東京都中央区日本橋本町2-8-12
交通 東京メトロ日比谷線小伝馬町」 徒歩5分
JR総武線(快速)新日本橋」 徒歩4分
東京メトロ日比谷線人形町」 徒歩7分
竣工 1982年07月 構造 鉄骨造+SRC
規模 地上7階, 地下1階 耐震基準 新耐震基準
床構造 フリーアクセス 50mm 空調設備 個別空調
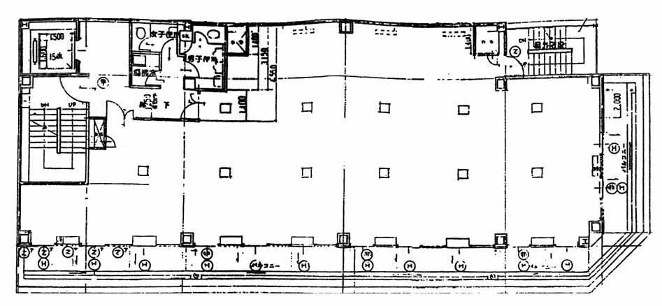
天井高 2540mm 基準階面積 93.11坪(307.8m2)
コンセント容量 - 施工会社

最新の募集状況や類似物件については、
こちらにお問い合わせください。

データ日本橋本町ビル 外観

外観

  • データ日本橋本町ビル エントランス写真

    エントランス

  • 2~5F

    2~5F

  • 1F

    1F

  • 6F

    6F

  • 7F

    7F

内見やお見積りなどの各種お問い合わせ

全物件
仲介手数料無料
仲介から
入居工事まで
ワンストップで対応
経験豊富なスタッフが
スピード感をもって
対応

周辺での似た条件の物件

非公開物件 多数あり!

お問い合わせフォーム