takeofficeなら掲載物件の仲介手数料は無料です

ニューカワイビル

住所 東京都中央区日本橋本町3-4-6
交通 JR総武線(快速)新日本橋」 徒歩1分
東京メトロ銀座線三越前」 徒歩3分
東京メトロ日比谷線小伝馬町」 徒歩4分
竣工 1988年05月 構造 -
規模 地上10階 耐震基準 新耐震基準
床構造 フリーアクセス 空調設備 個別空調
天井高 2500mm 基準階面積 108.36坪(358.21m2)
コンセント容量 - 施工会社

最新の募集状況や類似物件については、
こちらにお問い合わせください。

ニューカワイビル 外観

外観

  • ニューカワイビル エントランス写真

    エントランス

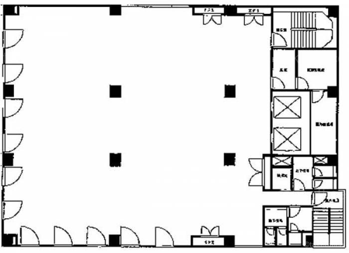
  • 基準階

    基準階

内見やお見積りなどの各種お問い合わせ

全物件
仲介手数料無料
仲介から
入居工事まで
ワンストップで対応
経験豊富なスタッフが
スピード感をもって
対応

周辺での似た条件の物件

非公開物件 多数あり!

お問い合わせフォーム