takeofficeなら掲載物件の仲介手数料は無料です

昭和薬貿ビル

住所 東京都中央区日本橋本町3-4-18
交通 JR総武線(快速)新日本橋」 徒歩1分
東京メトロ銀座線三越前」 徒歩3分
JR山手線神田」 徒歩9分
竣工 1983年07月 構造 RC
規模 地上6階 耐震基準 新耐震基準
床構造 フリーアクセス 空調設備 個別空調
天井高 2550mm 基準階面積 93.46坪(308.96m2)
コンセント容量 - 施工会社

最新の募集状況や類似物件については、
こちらにお問い合わせください。

昭和薬貿ビル 外観

外観

  • 昭和薬貿ビル エントランス写真

    エントランス

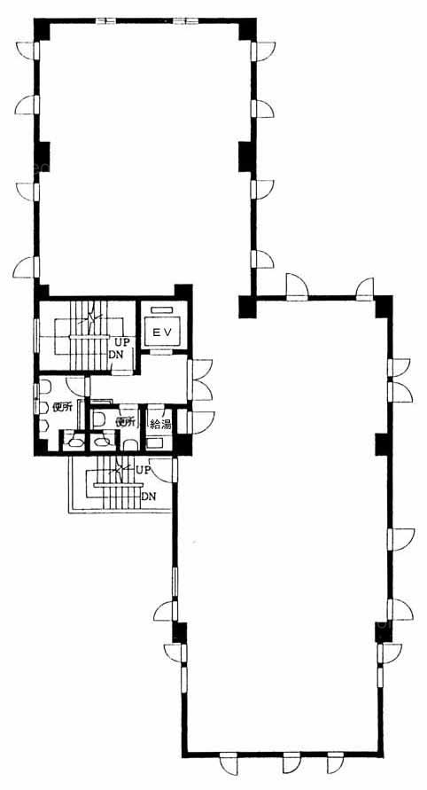
  • 4F

    4F

  • 3F

    3F

  • 6F

    6F

内見やお見積りなどの各種お問い合わせ

全物件
仲介手数料無料
仲介から
入居工事まで
ワンストップで対応
経験豊富なスタッフが
スピード感をもって
対応

周辺での似た条件の物件

非公開物件 多数あり!

お問い合わせフォーム